Жилье на улице Перуциева
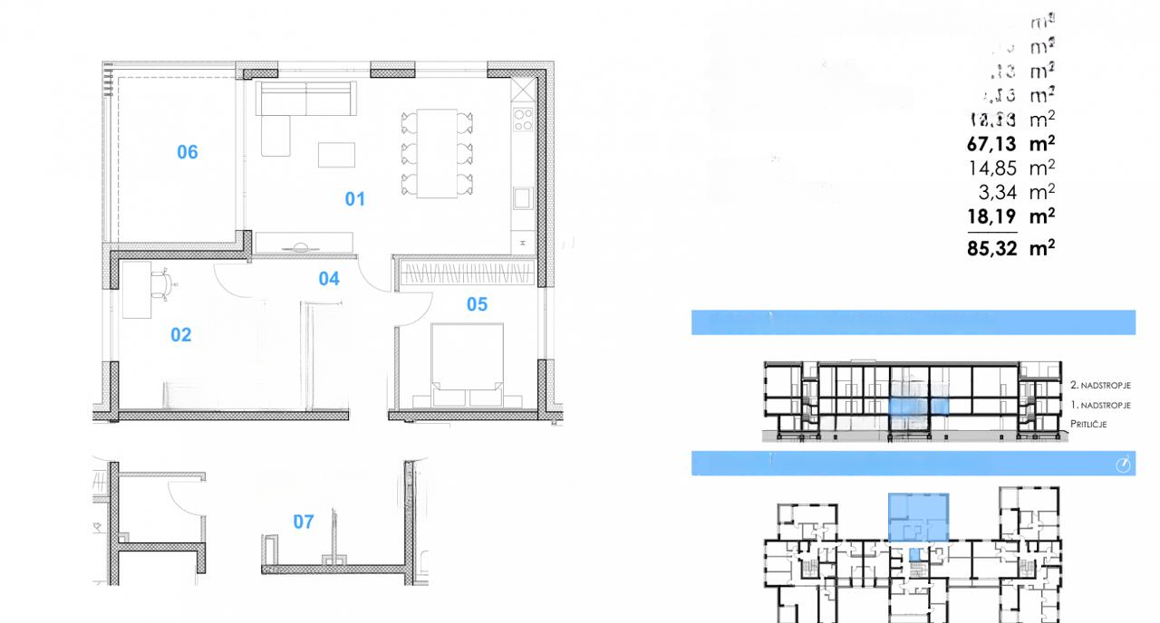
Параметры
На продажу выставлено современное трехкомнатное жилье с полной меблировкой, расположенное на улице Перуцциева в районе Рудник. Светлая и просторная квартира общей площадью 85,2 м², расположенная на первом этаже двухэтажного дома, возведенного в 2020 году, находится в прекрасном состоянии и готова к немедленному заселению.
Среди основных достоинств этой недвижимости - ее стратегическое расположение: всего в 4,5 км от центра города, рядом с автобусной остановкой и в 600 метрах от объездной дороги. Вблизи имеются детский сад, школа, торговый центр Supernova и множество площадок для отдыха и активного образа жизни на свежем воздухе.
Квартира обладает практичной планировкой: просторная жилая зона с современной кухней и обеденным уголком предоставляет доступ на крытую террасу площадью 14,80 м². Главная спальня и детская/рабочая комната также имеют выходы на террасу, а просторная ванная комната оснащена стиральной и сушильной машинами.
К элементам комфортного проживания относятся встроенные гардеробные в прихожей, система теплого пола, газовое отопление и современная инверторная система кондиционирования Mitsubishi. Триплексовые окна с автоматическими жалюзи и москитными сетками гарантируют превосходную шумо- и теплоизоляцию, а дубовый паркет добавляет уюта. Квартира оборудована отдельной вентиляцией и системой видеодомофона. Входные двери защищены от взлома и могут открываться с помощью отпечатка пальца.
Квартира включает кладовую площадью 3,3 м² и собственное парковочное место 19 м² с прямым доступом с дороги. Недвижимость отличается низкими коммунальными платежами и свободным владением без обременений.
- Жилая площадь: 67,1 м²
- Надкрытая терраса: 14,80 м²
- Кладовая: 3,3 м²
- Парковка: 19 м²
- Этаж: 1 из 2
- Лифт
- 2 спальни
- 1 ванная
- Система настенного отопления
- Проведено оптоволокно для интернета
- Энергоэффективность: класс B2 (25 - 35 кВт·ч/м²)
Цена: 452.000 евро

Вернуться к списку
Вывести в PDF