Двухкомнатная квартира в районе Бежиград.
Параметры
Вам предлагается приобрести новую и полностью обустроенную двухкомнатную квартиру в востребованном районе Бежиград в Любляне. Построенная в 2023 году, эта квартира расположена в высококачественном жилом комплексе с лифтом, что гарантирует комфортное, просторное и обдуманное проживание для индивидуалов, пар или небольших семей, ценящих высокий уровень жизни в городе.
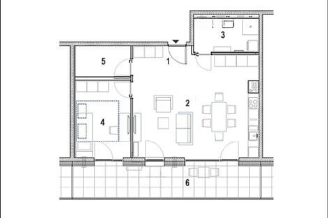
Находящаяся на пятом этаже, квартира занимает 83,6 м², и включает широкую террасу площадью 18,2 м². Продуманная планировка позволяет трансформировать жилую зону в трехкомнатную, добавив дополнительное помещение согласно вашим нуждам.
Внутреннее обустройство предлагает:
- Просторную гостиную, объединенную с кухонной и обеденной зонами, имеющими доступ к террасе.
- Рабочий уголок, отлично подходящий для удаленной работы.
- Уютную спальню.
- Современную ванную комнату.
- Дополнительную кладовую для хранения вещей.
Здание приспособлено для людей с ограниченной подвижностью благодаря увеличенной ширине дверей и отсутствию порогов, что облегчает перемещение, даже в инвалидной коляске.
Этот объект соответствует классу энергосбережения A, обеспечивая низкие эксплуатационные издержки и экологичное пребывание. Среди дополнительных выгод:
- Полная меблировка.
- Парковочное место в гараже площадью 24,5 м², рассчитанное на два автомобиля.
- Подогреваемый пол для дополнительного уюта.
- Высококачественный дубовый паркет больших размеров.
- Трехслойные стеклопакеты для оптимальной тепло- и звукоизоляции.
- Защитные входные двери от взлома.
- Рекуперационная вентиляция для постоянного притока свежего воздуха.
- Две климат-системы для комфортного пребывания в любое время года.
- 5-метровая тента с электрическим управлением и сенсором ветра для автоматического закрытия.
- Москитные сетки.
- Общее помещение для хранения велосипедов.
- Домофон с видеовызовом для удобства и безопасности.
Квартира находится в районе с развитой инфраструктурой, что обеспечивает все необходимое для комфортного проживания и готова для заселения без задержек.
Цена: 460 000 EUR

Вернуться к списку
Вывести в PDF