Двухкомнатная квартира расположена в Трново
Параметры
На первом этаже уютного здания с шестью квартирами расположена просторная двухкомнатная квартира общей площадью 60,24 м² в районе Трново. Хотя дом был построен в 1966 году, в 2010 году здесь провели полную модернизацию, и сейчас квартира находится в отличном состоянии, требующем только лёгкой косметической доработки. Это идеальное место для комфортного проживания благодаря низким эксплуатационным затратам и развитой инфраструктуре.
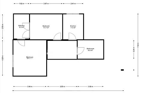
В квартире имеется прихожая, ванная комната, кухня с обеденной зоной и выходом на небольшой балкон, а также две большие комнаты с доступом к большому балкону. Здание оснащено радиаторной системой отопления и домофоном.
Неподалеку от дома находятся детский сад, школа, автобусная остановка и удобный выезд на автомагистраль. В шаговой доступности раскинулись живописные парковые зоны и природные уголки для отдыха на свежем воздухе. Центр города с множеством ресторанов также находится совсем рядом, что делает расположение жилья ещё более привлекательным.
- Общая площадь — 60,24 м²
- Этаж — 1/3
- Количество спален — 2
- Количество ванных — 1
- Балконы — два, с одним из них увеличенного размера
- Личное парковочное место — 1
- Гараж и дополнительное парковочное место перед ним
- Приусадебный участок — 14 м²
- Кладовая
- Класс энергоэффективности — C (35 - 60 kWh/m²a)
- Стоянка для велосипедов
Цена: 380 000 €

Вернуться к списку
Вывести в PDF