Квартира с пятью комнатами в Копере
Параметры
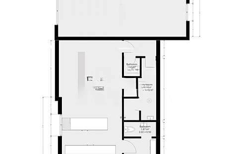
На продажу выставлена просторная квартира в Присое, части города Копер, с общей площадью 123,56 м². Недвижимость расположена на первом этаже многоквартирного дома и состоит из двух отдельных единиц, которые нуждаются в ремонте. Каждая из них имеет собственный вход и может использоваться либо объединённой, либо раздельно.
- Первая единица включает три комнаты общей площадью 66,13 м², а также подвал 2,72 м²; ранее здесь размещалось общественное помещение.
- Вторая единица представляет собой двухкомнатную квартиру площадью 57,43 м², прежде служившую кафе.
Перед входом в жилое помещение находится ограждённая практичная территория, которая может использоваться как угодно. Объект расположен в выгодной зоне с доступом ко всей необходимой инфраструктуре: в шаговой доступности находятся магазины, аптека, банк, автобусная остановка и медицинские учреждения. Кроме того, рядом с объектом доступны общественные парковки.
- Площадь: 123,56 м²
- Этаж: первый
- Энергоэффективность: 60-105 кВтч/м² в год
Цена: 370 000 евро

Вернуться к списку
Вывести в PDF