1-комнатная квартира Новая Шишка
Параметры
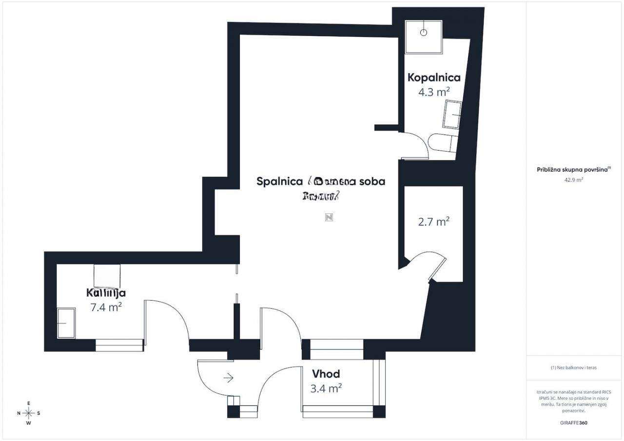
В тихом и благоустроенном районе Шишка в Любляне предлагается уютная однокомнатная квартира с атриумом и закрепленным парковочным местом. Жилье находиться на первом уровне здания, в котором всего пять квартир. Площадь квартиры составляет 40,8 м², а прилегающий участок земли занимает 40 м².
Планировка квартиры рациональна: имеется закрытая прихожая, центральное жилое пространство с зоной отдыха, отдельная кухня с выходом на террасу, ванная комната с душем и небольшая кладовая. Особенность интерьера — это кровать с подъемным механизмом, обеспечивающая дополнительные места для хранения. В 2014 году квартира прошла частичное обновление, она полностью оборудована и готова к проживанию.
Здание было капитально отремонтировано в 2004 году, включая замену крыши и обновление фасадов. На первом этаже также есть кладовое помещение и общая парковка для велосипедов. В стоимость включено парковочное место под навесом.
Расположенная на улице Водникова, эта квартира обеспечивает легкий доступ к кольцевой дороге и городскому центру. Рядом находятся магазины, школа, детский сад, аптека, банковское отделение, а также торговый центр Aleja и рынок Кошезе. Зеленые зоны и возможности для активного отдыха — такие, как пруд Кошезе, Мостец и Рожник — находятся совсем близко. Налаженное сообщение с другими частями города обеспечивают несколько линий общественного транспорта.
- Площадь: 40,80 м²
- Этаж: 1
- Площадь участка: 40,00 м²
- Энергетический класс: D (60 - 105 кВтч/м² в год)
- Тип отопления: газовые радиаторы
- Тип вентиляции: I-Vent
- Интернет-соединение: оптоволокно
- Парковка: под навесом
Цена: 198 000,00 EUR

Вернуться к списку
Вывести в PDF