Сежана: современная квартира с одной спальней
Параметры
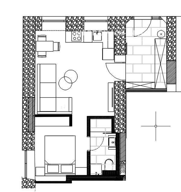
Продается стильная однокомнатная квартира площадью 40 квадратных метров в сердце города Сежана. Здание, возведенное в 1901 году, сейчас находится на стадии полной реконструкции, завершение которой намечено на ближайшие два месяца.
Квартира расположена на первом уровне и обладает отдельным входом. Планировка оптимально продумана для обеспечения комфорта и удобства проживания. Ее площадь в 40 м² предоставляет достаточно места для комфортной жизни.
Среди преимуществ этого объекта — великолепное местоположение в самом центре Сежаны. В непосредственной близости находятся магазины, школа, детский сад, медицинский центр, почта и банк, что обеспечивает удобный доступ ко всем необходимым услугам в повседневной жизни.
Эта квартира является отличной инвестиционной возможностью: она подходит для долгосрочной и краткосрочной аренды, станет первым домом для молодых пар или одиночек, а также идеальна для пожилых людей благодаря своей удобной площади и отличной локации.
- Площадь: 40 м²
- Этаж: первый уровень
- Год постройки: 1901
- Завершение реконструкции: 2026
Цена: 189,000 евро

Вернуться к списку
Вывести в PDF