Рудник: дом с террасой
Параметры
В живописном районе Любляна, в Трновском пригороде (Ракова Йельша), предлагается современное жилище с террасой, расположенное на тихой тупиковой улице. Новый дом площадью 145,2 м² идеально отвечает запросам семей благодаря своему удачному местоположению: сочетание близости к центру города и необходимой инфраструктуры с уединением и природной обстановкой. Рядом находятся детский сад, различные магазины, банк, почта, рестораны, прогулочные дорожки вдоль Любляницы, а также удобный доступ к кольцевой дороге и ТЦ Рудник, что делает это предложение ещё более привлекательным.
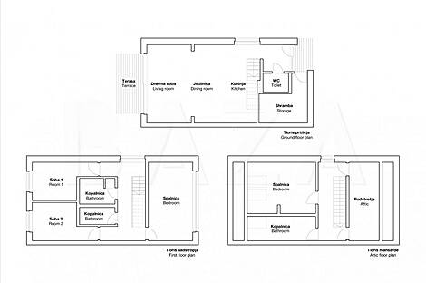
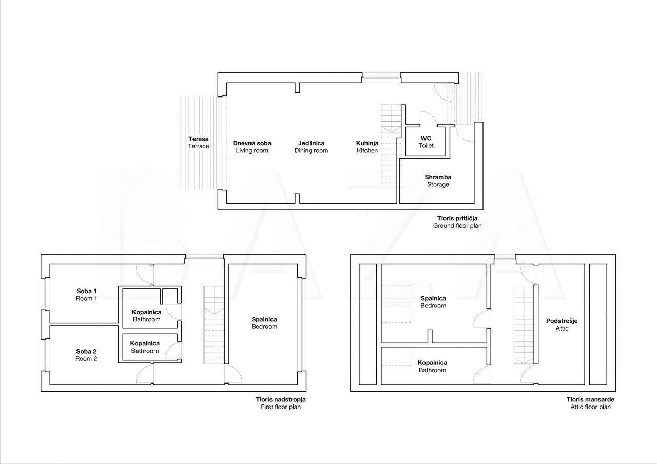
Строение включает подвал, первый этаж и мансарду, предоставляя общую площадь в 213 м², из которых жилая занимает 145,2 м². На первом этаже предусмотрены прихожая, кладовая/техпомещение, отдельный туалет, просторная гостиная, объединённая с кухней и столовой, с выходом через панорамные окна на террасу (8 м²) и в сад. На втором этаже расположены три спальни, коридор и две ванные комнаты. Мансарда включает дополнительную спальню, коридор и вторую ванную. Земельный надел составляет 144,4 м² и включает два личных парковочных места.
Дом будет сдан в третьей расширенной строительной стадии: основные работы как фундамент, несущая конструкция, изолированная крыша, внешняя отделка фасада, оконные рамы (ПВХ/АЛЮ) и входная дверь. Предоставляются также основные инженерные коммуникации и современная система отопления с тепловым насосом, которая работает вместе с тёплыми полами и подключением к волоконно-оптическому интернету. Все коммунальные подключения будут завершены, и доступ к объекту будет обеспечен. По желанию, за дополнительную плату возможна полная отделка дома "под ключ" с индивидуализацией интерьера.
- Количество комнат: 4 спальни
- Ванные комнаты: 3
- Парковочные места: 2 личных
- Площадь участка: 144,4 м²
- Отопление: через тёплый пол
- Тепловой насос
- Скоростной интернет
- Идеально для семей и пожилых людей
- Близко к школам и зелёным зонам отдыха
Цена: 449 990 евро

Вернуться к списку
Вывести в PDF