Бошамарин - дом на две семьи
Параметры
На продажу выставлена престижная дуплексная новостройка, расположенная в районе Бошамарин, в городе Копер. Завершение строительства ожидается в 2026 году. Дом занимает площадь 187 м² и расположен на участке размером 351 м².
В числе особенностей данного дома — современный автоматизированный бассейн с системами контроля за pH и хлором, солнечная электростанция, благоустроенный земельный участок с системой полива, зелёными газонами и бетонными дорожками с дренажным решением. Для безопасности предусмотрены видеонаблюдение и сигнализация.
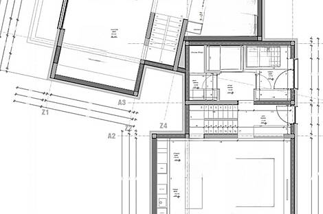
- Первый этаж:
- Просторная гостиная с кухней и обеденной зоной, выход на террасу с летней кухней
- Кабинет
- Ванная комната
- Постирочная
- Котельная
- Лестница на второй этаж
- Второй этаж:
- Две спальни с выходом на общую террасу
- Ванная комната
- Главная спальня, оснащённая гардеробной и выходом на балкон
Технические характеристики включают в себя окна с тройным стеклом и электрическими жалюзи, система вентиляции Blauberg, напольное отопление с насосом Daikin, который также обеспечивает охлаждение, а также две системы кондиционирования Daikin. Дом построен из современных материалов, таких как термокирпич и графитовый пенополистирол, которые гарантируют отличную изоляцию. В интерьере проекта предлагаются различные варианты покрытия: керамика или паркет на выбор.
- Дом: 187 м²
- Участок: 351 м²
- Этажи: первый и второй
- Спальни: 3
- Ванные комнаты: 2
- Терраса и балкон
- Автоматизированный бассейн
- Парковка на три машины
- Солнечная электростанция
- Система климат-контроля
- Подходит как для семей, так и для пожилых людей
Цена: 720 000 € ♂️

Вернуться к списку
Вывести в PDF