Апартаменты, 4 комнаты, Новый ЛЮБЛЯНА, ВИЧ
Параметры
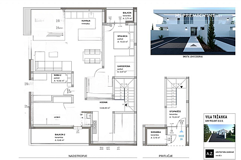
Рады представить вам великолепную 4-комнатную квартиру с общей площадью 137,7 м² в престижном районе Вич города Любляна. Этот новый жилой комплекс, окружённый преимущественно частными коттеджами, находится в местности Долги мост и гармонично сочетает комфорт с функциональностью. Апартаменты расположились на первом уровне Виллы Тржанка, неподалёку от Тржашкой дороги.
Жилая зона занимает 118,9 м², а также имеются три балкона суммарной площадью 15,3 м² и отдельная кладовая, достигающая 3,5 м². Вход ведёт сквозь просторный и светлый холл на первом этаже. Второй этаж включает три спальни, две ванные, три балкона, хозяйственное помещение и большое открытое пространство, где обеденная зона и гостиная объединены с кухней.
Квартира возведена с применением классической строительной технологии: высота потолков составляет 280 см, установлены алюминиевые окна с тройным остеклением и электронными жалюзи. Толщина фасада - 20 см, предусмотрено отопление пола посредством городского газа и индивидуальная газовая система для каждого жилища. Также есть система вентиляции с локальными рекуператорами и кондиционирование, управляемое через умную систему дома.
На территории, прилегающей к дому и предназначенной исключительно для данной квартиры, выделены два парковочных места, что обеспечивает максимум преимуществ от проживания в частном секторе.
- Площадь: 137,70 м²
- Этаж: 1
- Количество спален: 3
- Количество ванных комнат: 2
- Энергетический класс: B1 (15 - 25 кВтч/м²год)
Цена: 569 000 EUR

Вернуться к списку
Вывести в PDF