Дом в Вижмарье
Параметры
Для продажи предлагается одноэтажный дом в спокойном районе Вижмарье, который является идеальным местом для семейной жизни, где сочетаются комфорт и тишина. Площадь дома составляет 176 м², а прилегающий участок — 512 м². Построенный в 1975 году, дом отличается надежностью и высоким качеством.
На первом этаже расположены прихожая, кухня с обеденной зоной, комната, предлагающая варианты использования, такие как спальня, кабинет или гостиная, ванная комната с туалетом, кладовая и гараж.
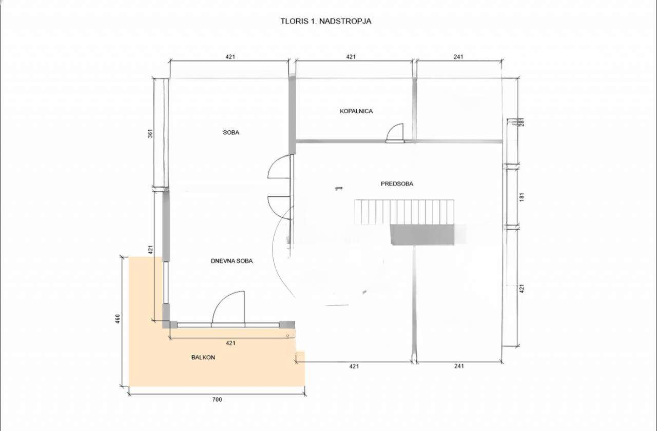
Второй этаж включает в себя прихожую, кухню с зоной столовой, соединенную с гостиной, которая ведет на просторный балкон, три светлые и просторные комнаты, а также ванную комнату с туалетом. Мансарда открывает множество возможностей для использования — она может стать игровой комнатой, спальней для подростков, домашним офисом или тренажерным залом.
Окруженный ухоженным садом, дом обеспечивает полную приватность, а деревянная хижина на участке служит летней кухней, местом для хранения инструментов или уютной зоной для встреч. Парк места находятся прямо перед домом.
Рядом с домом имеются все необходимые удобства: магазины, школа, детский сад, автобусная остановка и кафе, а также зеленые зоны и велосипедные дорожки для отдыха.
- Общая площадь: 176 м²
- Количество спален: 5
- Количество ванных комнат: 2
- Кладовая
- Участок: 512 м²
- Терраса
- Отопление: радиаторы, топливо — масло
- Энергетический класс: G (свыше 210 кВтч/м² в год)
- Дополнительный сельскохозяйственный объект (дровяник): 20 м²
- Полная меблировка
Цена: 680 000 €

Вернуться к списку
Вывести в PDF