Трёхкомнатная квартира в Центре
Параметры
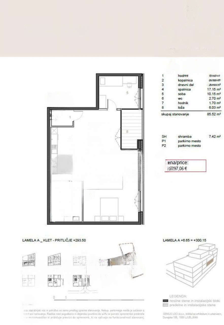
Вас ждет современная квартира площадью 92,94 м² в эксклюзивном районе Девана Парк II, расположенном на холмах Головеца в центре Любляны. Этот проект, завершение которого запланировано на 2024 год, идеально совмещает городскую суету с природной гармонией, предоставляя превосходные условия для проживания.
Квартира, расположенная на первом этаже и оснащенная лифтом, включает в себя две уютные спальни, комфортную ванную комнату, балкон для отдыха на свежем воздухе и личное парковочное место. Среди особенностей можно выделить полное оснащение, систему напольного отопления и кондиционирование воздуха.
Жители Девана Парк II будут наслаждаться великолепными видами на панораму Любляны и Альпийские горы. Всего в нескольких шагах от дома вы найдете все необходимое для комфортной жизни в городе, сохраняя при этом близость к природе и спокойствие района.
Проект предлагает разнообразные варианты жилья, начиная от компактных студий и заканчивая просторными четырёхкомнатными квартирами с наружными площадками и террасами. В настоящее время для ознакомления доступны два образцовых полностью обставленных квартиры. Каждая квартира готова к быстрому заселению, позволяя избежать долгого ожидания и с радостью переехать в новое жилье.
- Площадь: 92,94 м²
- Этаж: 1
- Лифт: есть
- Спальни: 2
- Ванные комнаты: 1
- Балкон: предоставляется
- Парковка: личное место
- Отопление: напольное и с помощью кондиционера
- Кондиционер: предоставляется
- Энергоэффективность: (0 - 0 kWh/m²a)
Стоимость: 558,297 EUR

Вернуться к списку
Вывести в PDF