Студия на Виче
Параметры
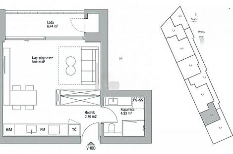
В продаже представлено неповторимое жилье в новом престижном жилом комплексе на улице Тржашка в Любляне, районе Вич. Завершение объекта запланировано на март 2027 года, и он строится в соответствии с высокими стандартами качества. На продажу остается последняя студия, расположенная на первом этаже двухэтажного здания и выходящая окнами на юго-запад.
Жилая площадь составляет 30,7 м² и включает в себя зону для сна, кухню с обеденным уголком и ванную комнату. Просторная лоджия размером 6,4 м² предоставляет возможность в полной мере наслаждаться окружающим ландшафтом. В дополнение к квартире предусмотрена удобная кладовая площадью 7,9 м² в подвале и крытое парковочное место размером 14 м². Каждая квартира оснащена системой тепловой насосной установки и предустановкой для кондиционирования, а также системой напольного отопления по всему помещению.
Комплекс создан с учётом современных энергетических стандартов: стены выполнены из первоклассных материалов, окна имеют тройное энергосберегающее остекление с наружными жалюзи. Встроенная система вентиляции с рекуперацией позволяет значительное снижение затрат на отопление. Фасад имеет изящный вид благодаря комбинации контактной и вентилируемой облицовки.
В подвале находятся кладовые и комната для велосипедов с местами для двух велосипедов на каждую квартиру, а также шкафчики для детских колясок и техпомещение. Парковочные места размещены на цокольном этаже под навесом комплекса.
- Общая площадь: 59 м²
- Этаж: 1/2 с лифтом
- Количество ванных комнат: 1
- Общая площадь территории: 1.388 м²
- Парковочное место: 14 м²
- Тепловая насосная установка
Стоимость: 272.707,00 EUR

Вернуться к списку
Вывести в PDF