Двухкомнатная квартира в Новом Бежиграде
Параметры
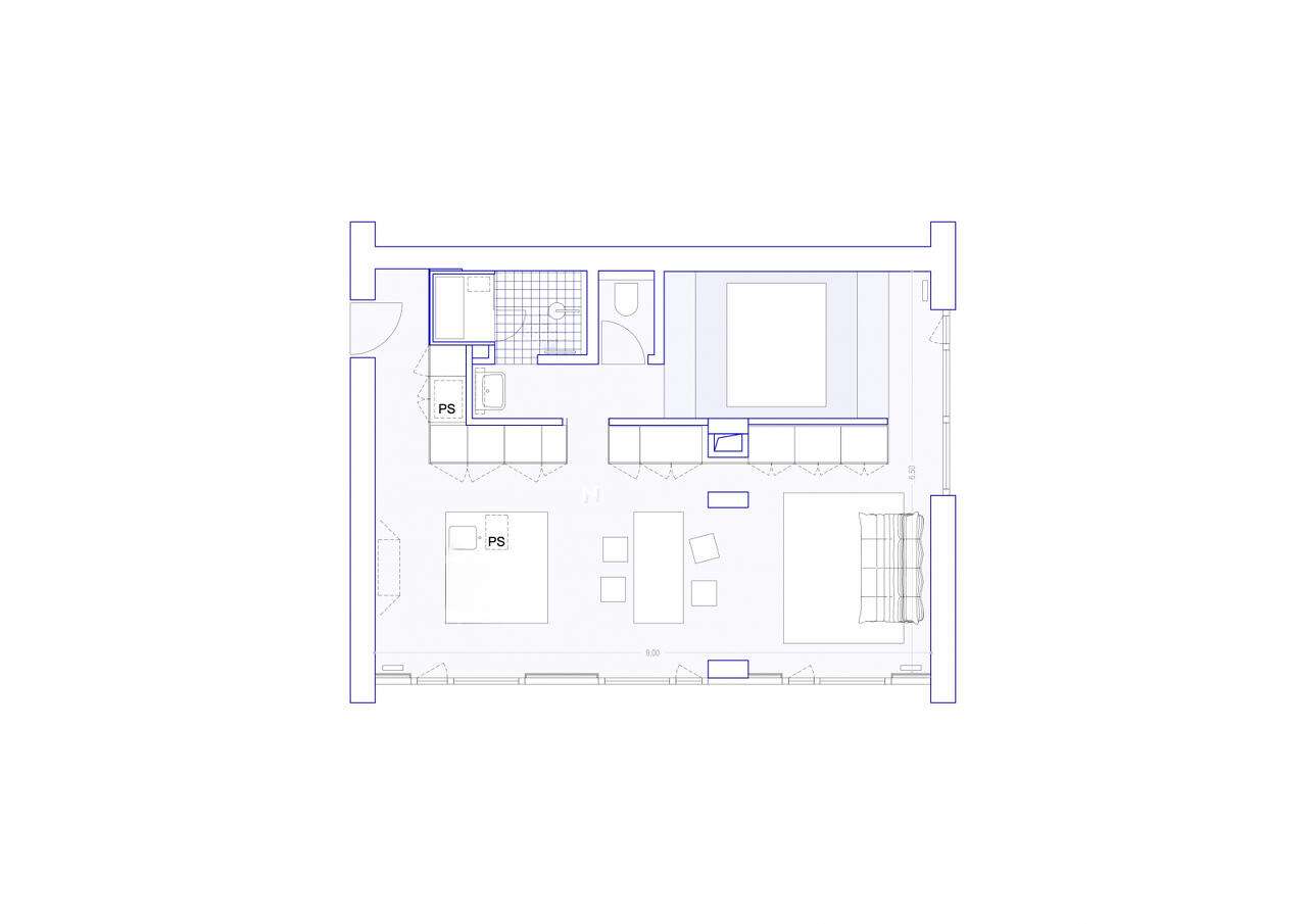
Предлагаем вашему вниманию дуплекс в районе Бежиград в Любляне, который занимает 59,4 м². Расположенный в здании 1961 года на четвёртом этаже, этот объект в 2024 году претерпел полный обновлённый ремонт и готов к немедленному заселению. Светлый и просторный пентхаус, оформленный как двухкомнатное жильё, сочетает в себе удобства современного комфорта и практичное зонирование, с возможностью изменения планировки.
Доминирующая юго-западная ориентация обеспечивает объекту обильное естественное освещение, создавая приятную атмосферу в течение всего дня. Интерьер включает в себя:
- прихожую,
- просторную гостиную, совмещённую с кухней и столовой зоной,
- ванную комнату с сауной,
- отдельный туалет,
- спальню.
Жилой комплекс находится в тихом и благополучном районе с развитой инфраструктурой. В непосредственной близости есть детский сад, школа, зелёные зоны для отдыха и занятий спортом, автобусная остановка и центр города.
- Площадь: 59,40 м²
- Этаж: 4 из 4
- Спальни: 1
- Ванные комнаты: 1
- Отдельный туалет
- Кладовая
- Парковочное место: 1
- Место для велосипедов
- Отопление: радиаторы и климатическая система
- Теплообеспечение
- Противовзломная дверь
- Домофон
- Полностью оборудованное жилье
- Оптоволоконный интернет
- Энергетический класс: D (60 - 105 кВтч/м² в год)
Цена: 360 000 EUR

Вернуться к списку
Вывести в PDF