Дом, Тачен
Параметры
Предлагается новый двухуровневый дом в районе Тачен, с жилой площадью 114,7 м² и участком на 315 м². Строительство завершено в 2023 году до 3-й расширенной стадии, и дом расположен в спокойном месте, открывающем виды на сельскохозяйственные земли. В окружении - зелёные поля и Шмарна гора.
Дом станет идеальным выбором для семьи, ценящей комфорт и тишину. В радиусе одного километра находятся магазин, детский сад, начальная школа и аптека. До автобусной остановки всего 5 минут пешком, а автомобильная развязка находится в 5 минутах езды. Окрестности богаты возможностями для отдыха и активного образа жизни. ♀️
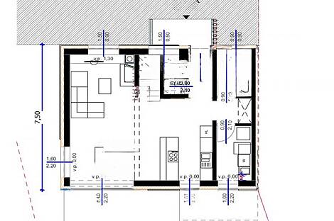
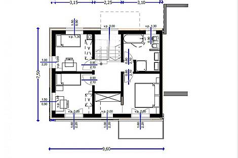
Планировка помещений:
- Первый этаж (56,8 м²): вестибюль, гардеробная, гостиная с кухней, ванная комната, кладовая, прачечная и лестница.
- Второй этаж (53,9 м²): главная спальня с гардеробной, две детские комнаты, ванная комната и лестница. Из главной спальни есть доступ на балкон площадью 5,6 м².
Технические характеристики:
- Основной материал - кирпичная кладка (30 см) с силиконовой отделкой и теплоизоляцией (20 см, пенополистирол).
- Подготовлено место для установки солнечных батарей.
- Алюминиевая входная дверь с противовзломной защитой.
- Трёхслойные ПВХ окна с электроприводными жалюзи и установкой для москитных сеток.
- Система отопления - тепловой насос воздух-вода.
- Централизованная вентиляция с функцией рекуперации.
- Собственная система отвода дождевой воды с масловловителем; укрепление территории металлическими сетками и кокосовыми волокнами.
- Подключение к публичным сетям водоснабжения, канализации и электроснабжения.
- Проведены кабели для оптоволоконной связи.
Парковочные возможности: два парковочных места перед входом и укреплённая площадка 64 м², подходящая для размещения гаража или склада.
Цена: 521 000 евро.

Вернуться к списку
Вывести в PDF