Центр бизнеса Новолюблянский
Параметры
Представляем на продажу коммерческое помещение 613,5 м² в самом центре города Любляна. Построенное в 1960 году здание было модернизировано в 2009 году. Объект включает два уровня: первый этаж и подвал. Это пространство идеально подходит для открытия ресторана, клуба, офиса или фитнес-центра.
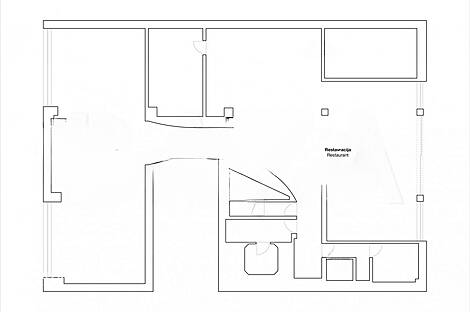
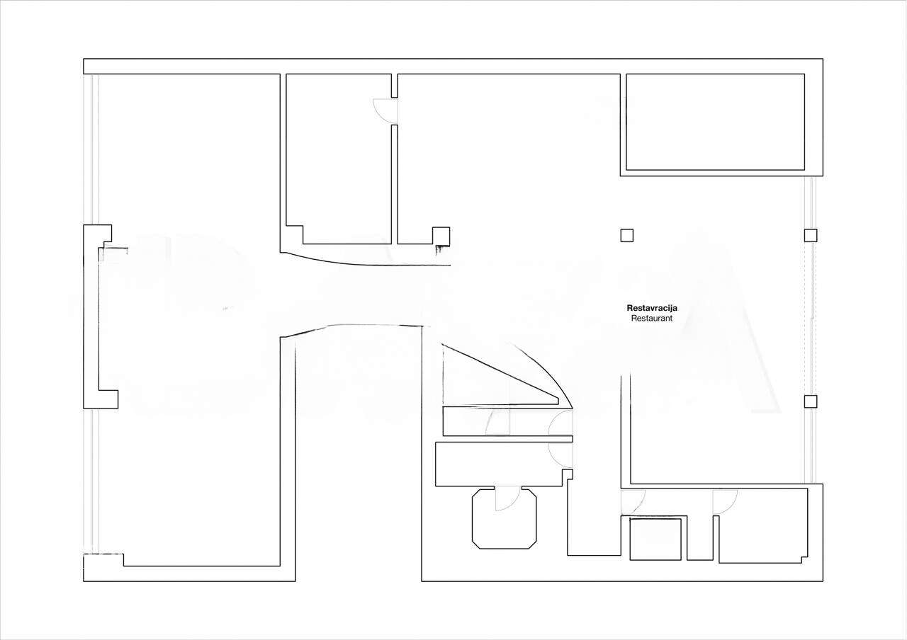
Особенность архитектуры заключается в наличии двух раздельных помещений на первом уровне, где располагаются кухня и склад. Основное пространство для посетителей включает на первом этаже барную стойку, кухню, грузовой лифт, складские помещения и туалеты. Кроме того, имеется просторная терраса, ее эксплуатация согласована с городскими властями. В подвале расположены бар, зал, комната, два санузла и небольшая кино-комната.
Объект прошел полную модернизацию: в 2009 году были заменены все инженерные системы. В последние два года была обновлена кухня, напольные покрытия и оборудование. Установлена вентиляция, а отопление осуществляется через городскую сеть. Помещения полностью оснащены и готовы для использования; платежи осуществляются по фактическому потреблению.
- Общая площадь: 613,5 м²
- Этажи: подвал и первый этаж (К+П)
- Количество ванных комнат: 2
- Подвал
- Терраса
- Централизованное отопление
- Близость к центру города
Поскольку сооружение расположено в центре Любляны, в непосредственной близости от Баварского Двора и прочих значимых объектов инфраструктуры, доступ ко всем удобствам города станет неоспоримым преимуществом для вашего бизнеса.
Инвестиционная привлекательность объекта оценена на 8 из 10. С учетом его текущего состояния и выгодного расположения, он представляет собой отличный вариант для коммерческой деятельности в центре столицы Словении.
Цена: 1 400 000 EUR
Вернуться к списку
Вывести в PDF