Квартира с тремя комнатами в районе Бежиград.
Параметры
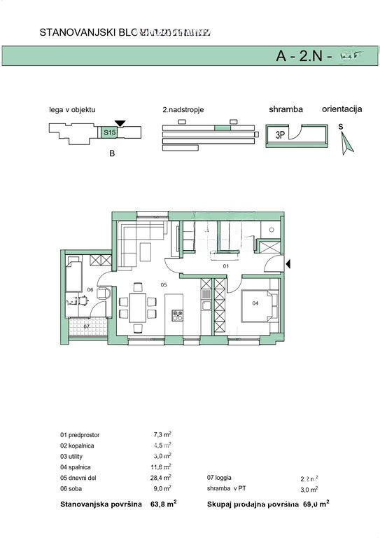
Современное жилье площадью 69 м² на три комнаты находится в Надгорице, в новостройке с 16 квартирами. Класс энергоэффективности A2 обеспечивает низкие затраты на энергоресурсы благодаря превосходной термоизоляции и инновационным строительным решениям.
Эта квартира занимает второй из двух этажей и выделяется практичной и стильной планировкой. Среди удобств крытая лоджия и личное парковочное место, где возможна установка зарядного устройства для электрокара. Есть также кладовая в подвале. В жилом комплексе обустроены детская игровая площадка и зоны для игр, что делает его идеальным для семейного проживания.
Объекты инфраструктуры располагаются в шаговой доступности, а благодаря удобному доступу до центра Любляны и до автомагистрали, месторасположение исключительно удачное. Природа и тихий район обеспечивают жильцам уют и спокойствие.
- Общая площадь: 69 м²
- Жилая площадь: 63,8 м²
- Кладовая: 3 м²
- Крытая лоджия: 2,2 м²
- Парковка: одно внешнее место
- Лифт: да
- Состояние: новостройка, готова к заселению
- Этаж: 2/2
- Энергоэффективность: класс A2
Внутри квартиры установлены ПВХ окна с тройным стеклопакетом, паркет из дуба, газовое отопление с системой теплого пола, климатическое оборудование, видеодомофон и санузел с сантехническим оборудованием.
Цена: 432 540,00 EUR

Вернуться к списку
Вывести в PDF