Жилье в квартале Бежиград
Параметры
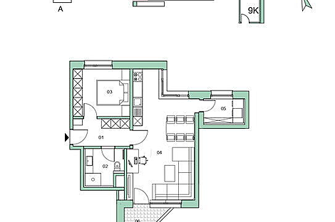
Предлагается новое двухкомнатное жилье в районе Надгорица общей площадью 66 м². Эта квартира является частью современного жилого блока, в который входят 16 апартаментов, что обеспечивает максимально комфортные условия проживания и отвечает высоким стандартам благодаря качественным материалам и продуманной планировке. Сразу после заселения владельцы смогут наслаждаться великолепной террасой, парковочным местом и кладовой. Дорога до центра Любляны займет немного времени благодаря отлично налаженной транспортной сети.
Здание выделяется как пример пассивного домостроения с энергоэффективностью класса A2. Уникальное внешнее оформление достигается за счет использования изоляционной каменной ваты и современного фасада. В квартире предусмотрен балкон, а продуманная защита от летнего зноя обеспечивается вертикальными жалюзи. Трехслойное остекление окон дополнено электроприводом жалюзи и москитными сетками.
В вашем распоряжении будут следующие удобства:
- Парковочное место с возможностью установки зарядки для электромобилей
- Оптоволоконное подключение к интернету
- Газовая система отопления с теплыми полами и дополнительными электрическими радиаторами в ванной
- Локальная система рекуперации воздуха
- Установленная сантехника, душевая кабина, мебель для ванной и зеркало
- Подготовка для установки кондиционера
- Видео-интерком
Инфраструктура района способствует комфортной жизни с быстрым доступом к городу и всем необходимым услугам. Вблизи расположены природные зоны и современные детские площадки, что делает это предложение идеальным для семей.
Технические параметры недвижимости:
- Площадь: 66 м²
- Расположение: 1/2 этаж
- Жилая площадь: 56,7 м²
- Кладовая: 5,7 м²
- Балкон: 3,6 м²
Стоимость: 405 350 €

Вернуться к списку
Вывести в PDF