Квартира, состоящая из 3 комнат, расположена в Новая Шишка.
Параметры
Предлагаем вашему вниманию просторную и светлую трёхкомнатную квартиру площадью 68,6 м², расположенную в Шишке — одном из самых удобных и развитых участков Любляны. Здание полностью обновлено и оснащено новой крышей, фасадными элементами, лестницами и входными дверями. В пешей доступности находятся все необходимые объекты инфраструктуры: магазины, банк, почта, а также образовательные учреждения, такие как школа и детский сад. Для любителей природы рядом с домом находятся парки Тиволи, Рожник и Мостец, идеальные для прогулок и отдыха.
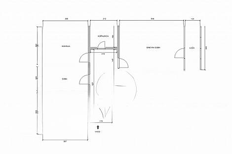
Построенная в 1965 году, квартира прошла капитальный ремонт: были установлены новые окна, межкомнатные двери и современная ванная комната. Планировка продумана до мелочей для создания комфортной и уютной обстановки для всей семьи. В нее входят:
- Просторный коридор;
- Кухня с обеденной зоной;
- Гостиная с выходом на балкон;
- Две спальни;
- Санузел с ванной.
К квартире прилагаются также погреб, общая сушильная комната, место для велосипедов и парковка перед домом для удобства жильцов. Из окон квартиры открывается замечательный вид на окрестности, а солнечные лучи насыщают простор светом в течение всего дня.
Энергетический класс: C (35 - 60 кВтч/м² в год).
Цена: 398 000 €

Вернуться к списку
Вывести в PDF