Жилье в районе Ружная Долина
Параметры
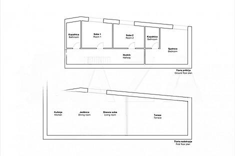
В одном из наиболее престижных и зелёных районов Любляны уютно расположена современная квартира на четыре комнаты, общая площадь которой составляет 158,70 м². Этот исключительный объект недвижимости находится в районе под холмом Рожник, где на тихой улочке возведён новый дом, рассчитанный всего на две квартиры.
Квартира включает цокольный уровень, первый этаж и мансарду; также она оборудована личным лифтом для удобного перемещения между этажами. На первом этаже расположены спальня, ещё две комнаты и две ванные. На мансарде сосредоточена жилая зона с кухней, обеденной зоной и гостиной, которая выходит на просторную террасу размером 38,80 м², а также в уединённый частный атриум.
Здание возведено с использованием современных строительных стандартов, в основе лежит бетон и железобетон, а двускатная крыша обеспечивает грамотное распределение пространства и высокий уровень конфиденциальности. Полы с подогреваемой системой, тепловой насос для нагрева воды и современные системы кондиционирования создают комфортную среду в доме.
Этот проект разработало знаменитое архитектурное бюро Bevk Perović, и он выполнен с применением качественных материалов. Окна изготовлены из прочного сибирского лиственника, а входная дверь снабжена шумоизоляцией. Установлены новейшие системы затемнения окон и высококлассная внутреннее освещение.
Квартира окружена зелёными зонами, рядом находятся места для отдыха, что делает её идеальной для проживания семей, пар и людей пожилого возраста. Домашние животные приветствуются. Помимо двух парковочных мест, предусмотрена возможность установки индивидуальной зарядной станции для электромобилей.
- Площадь: 158,00 м²
- Этажи: K+P+1
- Количество спален: 3
- Количество ванных комнат: 2
- Оперативный въезд
- Два парковочных места
- Терраса и атриум
- Тепловой насос и климат контроль
- Полы с подогревом
Стоимость: 1 200 000 EUR

Вернуться к списку
Вывести в PDF