Просторная четырёхкомнатная квартира в центре города Копер
Параметры
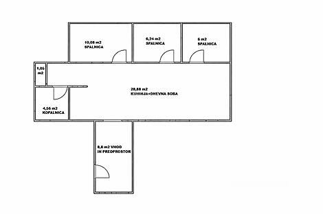
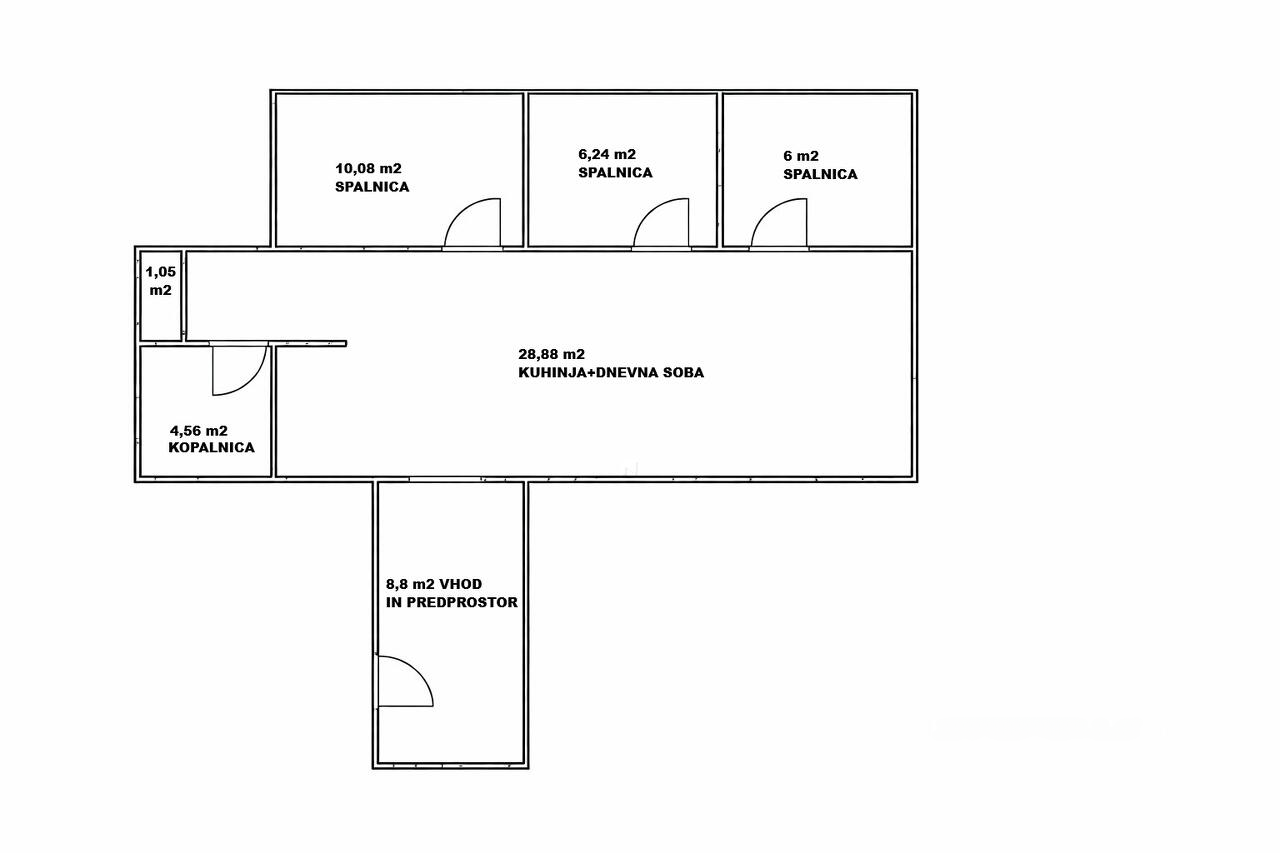
В самом сердце Копера находится просторная четырехкомнатная квартира площадью 78,4 м², оснащенная большой крышей террасой и удобствами для автомобилей. Построенная в 1860 году и целиком обновленная в 2000 году, эта современная резиденция предлагает уникальный шанс наслаждаться жизнью в центральной части города.
Основные достоинства этой недвижимости:
- Обширная крытая терраса — редкая находка в центральных районах ️
- Дополнительная небольшая терраса на лестничной клетке при входе
- Три уютных спальни, идеальные для семейного отдыха
- Полностью меблирована и готова для заселения ️
- Редкий бонус — возможность автомобильного доступа
Комплектация включает:
- Просторный вход и прихожая
- Открытая жилая зона с кухней и столовой ️
- Три спальни для максимального удобства
- Объединенная ванная комната и кладовая
Технические характеристики:
- Этажи: первый и чердак
- Общая площадь: 78,4 м²
- Количество спален: 3
- Ванная комната: 1
- Отопление: кондиционер и дрова/уголь
- Энергетическая классификация: E (105 - 150 кВтч/м²год)
Расположение в центре Копера предоставляет легкий доступ ко всем необходимым объектам инфраструктуры: школы, детские сады, места для активного отдыха, морские пляжи, магазины, рестораны и автобусные линии. Опция получения муниципального разрешения на парковку добавляет удобства.
Цена: 350 000 €

Вернуться к списку
Вывести в PDF