Дом, расположенный на террасе Солнечный Путь
Параметры
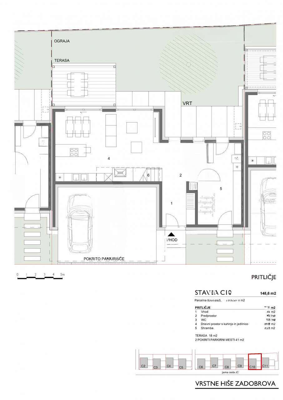
На Солнечной улице, в районе Згорние Задоброва, предлагается современное жилье с террасой. Дом площадью 148,58 м² занимает участок размером 247 м². Проект жилого здания адаптирован к высокому уровню инфраструктуры и прекрасной транспортной доступности, включая близость к восточной объездной дороге Любляны и автостраде Задоброва.
Постройка расположена в тихом и спокойном районе на окраине города, что обеспечивает приватность и уютное проживание рядом с множеством спортивных и развлекательных центров. Вся необходимая городская инфраструктура, такая как детский сад, школа, автобусная остановка и магазины, находятся неподалеку.
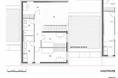
Жилье входит в состав нового жилого комплекса, который был спроектирован с учетом современных архитектурных тенденций и функционального дизайна. На первом уровне дома расположены просторная гостиная, подготовленная для установки камина, кухня и столовая, санузел, кладовая и выход на террасу и сад. Второй этаж включает три спальни, кабинет или дополнительную спальню и две ванные комнаты. Для автомобиля предусмотрены три собственных места парковки и одно гостевое.
Ключевые технические параметры:
- Общая площадь: 148,58 м²
- Количество этажей: первый и второй этаж
- Спальные комнаты: 4
- Ванные: 2
- Отдельный санузел
- Кладовая комната (16,8 м²)
- Места парковки: 3 + гостевое
- Терраса и сад
- Противовзломные двери
- Подготовлено для установки зарядной станции для электромобилей
- Возможность завершения строительства "под ключ"
Здание будет полностью готово на третьей стадии строительства фасада. Стоимость дома составляет 475 500 евро.

Вернуться к списку
Вывести в PDF