Жильё в Новом Поле
Параметры
В спокойном и эксклюзивном районе Поле – Слапе завершено строительство современного и светлого четырехкомнатного жилья общей площадью 147 м². Это частично меблированное пространство, находящееся в защищенном жилом комплексе из трех домов на две квартиры каждый, является отличным выбором для семейного уюта. Панорамные окна, ориентированные на три стороны света, дарят много дневного света на протяжении всего дня.
Основные достоинства дома включают в себя безопасность и приватность, доступные исключительно для его резидентов. Окружение идеально подходит для семей или тех, кто ищет тишину и близость к природе. Рядом находятся зеленые зоны для отдыха и отличное транспортное сообщение с городской инфраструктурой.
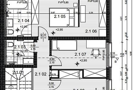
Дом распределен на три уровня. На первом этаже располагается прихожая, второй этаж включает две просторные детские комнаты с ванной, а также большую спальню для родителей с гардеробной и объединенной ванной комнатой. На третьем уровне находится просторная гостиная с кухней и выходом на террасу. В дополнение, рядом с кухней есть отдельное техническое помещение и отдельный санузел.
Параметры дома:
- Общая площадь: 147,2 м²
- Полезная площадь: 116,6 м²
- Подвал: 6,9 м²
- Терраса: 23,7 м²
- Ориентация: Север – Юг – Восток
Технические характеристики:
- Отопление: тепловой насос и теплый пол
- Окна: алюминиевые с древесными вставками
- Рекуперация воздуха
- Интернет-соединение: оптоволоконное
- Климат-контроль: обе жилые зоны
- Парковка: 2 собственных парковочных места во дворе комплекса
- Складское помещение рядом с парковкой
- Общая велосипедная парковка
Вокруг дома расположена полная инфраструктура: магазины, школа, детский сад, медицинский центр, салон красоты, парикмахерская, бар, почта, банк и общественный транспорт (LPP). Всё необходимое для комфортного проживания находится в пешей доступности, с быстрым выходом на автомагистраль и зеленые зоны отдыха.
Стоимость: 615 000 евро

Вернуться к списку
Вывести в PDF