Квартира с тремя комнатами в районе Бежиград
Параметры
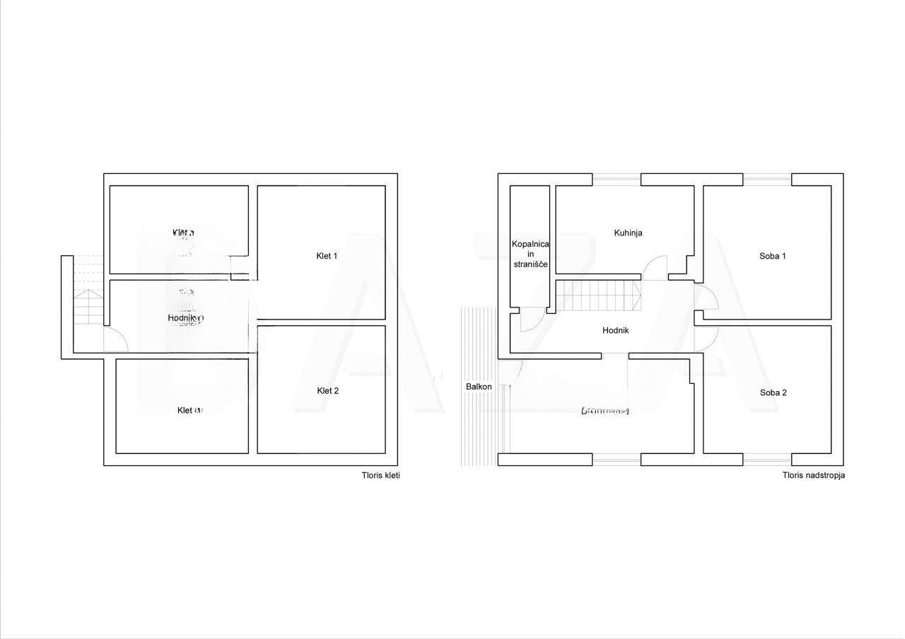
На продажу выставлена красивая трехкомнатная квартира в районе Бежиград города Любляна, площадь которой составляет 141,8 м². Квартира занимает весь первый этаж двухквартирного дома, возведенного в 1925 году. Жилая часть насчитывает 81,9 м², кроме того, имеется балкон размером 7,1 м², вместительный подвал площадью 33,5 м² и отдельно стоящий кирпичный гараж на 16,1 м².
Планировка жилья включает лестничный пролет, коридор, ванную комнату, две просторные спальни, гостиную, а также кухню со встроенной столовой. Владелец квартиры может воспользоваться общим садом, площадь которого составляет 312 м², предоставляющим уникальную возможность создать собственный зеленый оазис.
К числу преимуществ этой недвижимости можно отнести наличие собственных парковочных мест – одно расположено перед домом, а второе находится в гараже, а также легко контролируемое газовое отопление. В непосредственной близости располагаются детский сад, школа, аптека, банк, почта и остановка общественного транспорта. Совсем рядом находятся спортивные площадки и удобный выезд на шоссе. Окружающая природа и доступность всех необходимых объектов инфраструктуры делают это место превосходным для семейных пар и семей.
Хотя квартира нуждается в обновлении, она представляет собой прекрасную возможность для тех, кто мечтает жить в городской зоне, пользуясь всеми преимуществами частного дома с просторным подвалом, гаражом и собственным садом. Расходы на коммунальные услуги зависят от личного потребления электроэнергии, воды, газа и интернета.
- Общая площадь: 141,8 м²
- Уровень: 1/1
- Количество спален: 2
- Количество ванных комнат: 1
- Площадь подвала: 33,5 м²
- Площадь балкона: 7,1 м²
- Площадь сада: 312 м² (общая территория)
- Парковочные зоны: 2 (1 перед домом и 1 в гараже)
Стоимость: 358 000 EUR ️

Вернуться к списку
Вывести в PDF