Здание с атриумом в Ново Мургле
Параметры
Вашему вниманию представляется уникальная возможность приобрести дом с террасой в районе Мургле, Лубляна, который воплощает комфорт и удобство проживания в одном из самых спокойных и тихих уголков столицы. Построенный в 1974 году, дом претерпел полную модернизацию в 2019 году, что делает его отличным выбором для семей, стремящихся к современному уюту и функциональности.
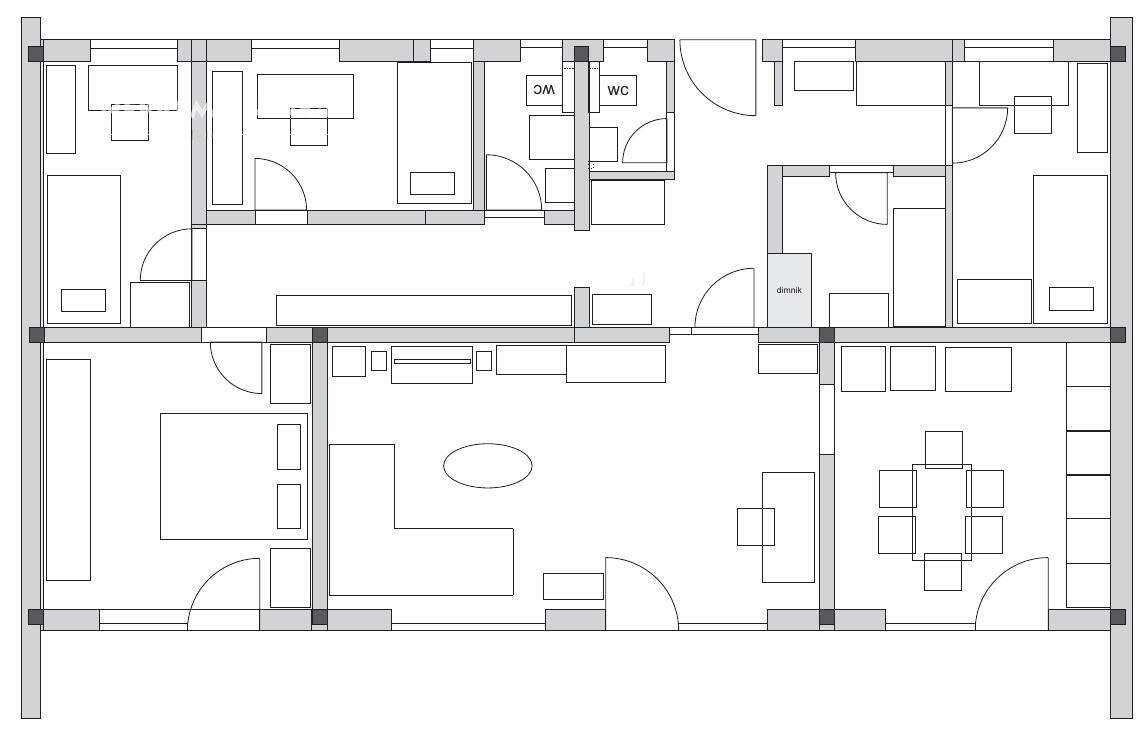
На площади 112 м² вас ожидают просторные помещения, среди которых отдельная кухня, соединенная с обеденной зоной, гостиная, спальня и три кабинета. Переоборудование кабинетов возможно, что позволяет создать офис или объединить два помещения. В доме установлена современная ванная комната с отдельным туалетом и дополнительный туалет для комфорта в служебной зоне.
Обновления коснулись как внутренней, так и внешней отделки: установлены энергосберегающие окна с тройными стеклопакетами, настелен дубовый паркет, модернизированы электросети и система водоснабжения. На прилежащей территории усовершенствован атриум, проложены дорожки и обновлен забор из лиственницы. Крыша, выполненная из материалов Gerard, также была обновлена.
Дом оборудован газовой системой отопления с радиаторами, а также кондиционером, который практически не нужен благодаря великолепной изоляции. Все окна оснащены москитными сетками и электрическими жалюзи, а кухня с новой газовой плитой идеально подходит для любителей готовить.
Дом находится на завершении тихой и уединённой улицы, где рядом всего один сосед, что дарит дополнительную приватность. Гараж располагает дополнительными местами для хранения, а на улице всегда можно найти место для парковки. В шаговой доступности расположены две школы, детский сад, автобусная остановка, супермаркет Mercator, банк и зоны для прогулок.
- Площадь: 112 м²
- Количество спален: 4
- Количество ванных комнат: 1
- Отдельный туалет
- Площадь участка: 307 м²
- Терраса и атриум
- Гараж и парковочное место на улице
- Отопление радиаторами и кондиционером
- Защищённые двери
- Частично меблирован
- Идеально для семей и пожилых людей
- Энергоэффективность: C (35 - 60 кВтч/м² в год)
Цена: 820 000 EUR

Вернуться к списку
Вывести в PDF