Апартаменты возле пляжа в Портороже
Параметры
Представляем вашему вниманию трехкомнатные апартаменты в престижном комплексе Virginia Residence, расположенном на первой линии известного пляжа Порторож. Этим предложением вы получите изумительный морской вид и непосредственный доступ к приморской инфраструктуре, что обеспечивает превосходное сочетание роскоши и комфорта.
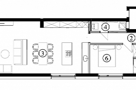
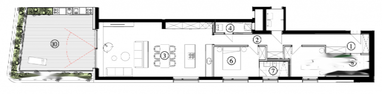
Общая площадь апартамента составляет 136,8 м², и он находится на втором этаже четырехэтажного здания. Внутри обустроены две спальни, каждая с собственными ванными комнатами, что гарантирует высокий уровень личного пространства. Просторная терраса площадью 33,1 м² предоставляет возможность наслаждаться впечатляющими видами, а также подготовлена для установки наружной кухни и джакузи. Апартамент оборудован современными системами отопления, кондиционирования и напольным отоплением, что обеспечивает уют в любое время года.
Virginia Residence — это эксклюзивный проект в Портороже, включающий всего семь апартаментов. Построенный из высококачественных материалов, комплекс оснащен деревянно-алюминиевыми окнами с тройным остеклением и просторными раздвижными стеклянными панелями. Его архитектура идеально сливается с окружающим ландшафтом, обеспечивая оптимальное естественное освещение и захватывающие панорамные виды. Каждое жилое помещение продумано до мелочей, чтобы гарантировать уникальный уровень функциональности и приватности.
Ключевые особенности:
- Роскошные апартаменты с неповторимым расположением на морском берегу.
- Современные террасы обеспечивают отличное естественное освещение.
- Энергоэффективные системы: фасадная теплоизоляция, контроль климатических условий и низкие эксплуатационные издержки.
- Озеленение территории и тент для создания тени на террасе.
Цена за апартамент составляет 1.781.298,00 евро.

Вернуться к списку
Вывести в PDF