Новая Любляна Вич: дом с террасой
Параметры
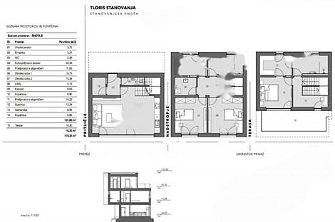
На продажу выставлен стильный дом с террасой в районе Вич Любляны, привлекающем своим шармом. Дом, площадью 179,35 м², располагается на участке размером 169 м² и идеально сочетает в себе элегантный дизайн и функциональные решения.
Этот новый дом — находка для тех, кто ищет удобный транспорт и близость ко всем необходимым объектам. Несмотря на оживленное окружение, вы сможете насладиться спокойствием в личном саду позади дома.
Основные черты: дом находится на стадии завершения, его функциональная планировка восхищает. На первом этаже: прихожая, кладовая, отдельный туалет, открытая зона гостиной, кухни и столовой, ведущая к атриуму. На втором этаже: две детские, кабинет, кладовая и ванная. Третий этаж включает спальню с гардеробной и ванной, кабинет и большую террасу.
В доме предусмотрено водяное отопление от городского газа, центральная вентиляция и все необходимые подключения. Перед домом — два парковочных места под шлагбаумом. Подъезд имеет асфальтированное и мощёное покрытие, территория ограждена. Внешние стены утеплены, установлены качественные окна с электрическими жалюзи из древесины и алюминия. Грамотное проектирование способствует энергоэффективности, обеспечивая комфортное проживание благодаря юго-восточной ориентации жилых помещений и северо-западной — технических комнат.
Преимущество расположения: рядом есть все необходимое — школы, детский сад, магазины и быстрый выезд на автостраду. До центра Любляны всего 2,5 км, что обеспечивает комфорт городской жизни, а собственный сад станет тихим убежищем от городской суеты.
Цена: 649 000 EUR

Вернуться к списку
Вывести в PDF