Квартира с тремя комнатами в Изоле
Параметры
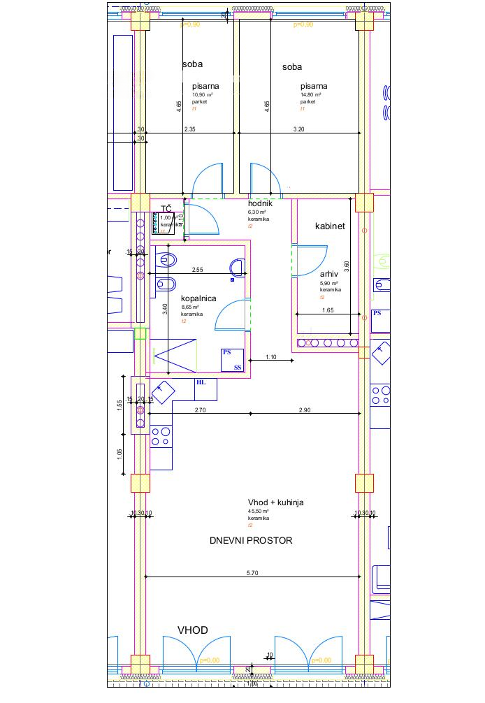
На продажу выставлена трёхкомнатная квартира площадью 90 м², расположенная на торговой улице в административном районе Изола. Жильё, находящееся на первом этаже здания, возведённого в 2022 году, идеально подходит как для бизнеса, так и для проживания. Оснащённая панорамными стеклянными дверьми, с просторными и светлыми помещениями, эта квартира дарит ощущение уюта и современности .
Главное помещение размером 45 м² оборудовано панорамным окном и всеми необходимыми подключениями для установки кухни. Просторная ванная комната отвечает современным стандартам и включает душ без поддона, биде, унитаз и умывальник. В квартире есть кабинет и две отделённые комнаты. По всей площади жилого помещения проложено тёплое подземное отопление с тепловым насосом, которое обеспечит уют в любое время года .
Перед домом обустроены общие парковочные места, и предусмотрены удобства для людей с ограниченными возможностями. Квартира абсолютно новая и готова к немедленному заселению. В собственности нет отдельного парковочного места, подвала и террасы.
- Общая площадь: 90 м²
- Класс энергоэффективности: B1 (15 - 25 кВтч/м² в год)
- Построена: 2022 г.
Цена: 393 000 евро

Вернуться к списку
Вывести в PDF