Четырёхкомнатная квартира в Бежиграде
Параметры
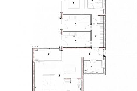
Мы предлагаем приобрести современную квартиру площадью 112,98 м² в районе Бежиград, расположенную на третьем этаже девятиэтажного дома, который будет введен в эксплуатацию в 2028 году. В апартаментах предусмотрены четыре комнаты, включая три спальни и ванную, и они находятся в новом жилом комплексе Новый Бежиград, возведенном на месте бывшей типографии.
Район Новый Бежиград, простирающийся между улицами Толстовской и Машера-Спашичеве, представляет собой новую философию развития — зелёную, открытую и наполненную светом территорию. В проекте используется террасная архитектура современного стиля, благодаря чему даже на верхних этажах создаются зелёные пространства. Просторные стеклянные панели в квартирах обеспечивают обилие естественного света и позволяют любоваться захватывающими видами на величественные Юлийские Альпы. Строительство ведется с применением качественных и стойких материалов, что гарантирует долгий срок службы и защиту от природных факторов.
Каналы естественного освещения и свободные пространства формируют элегантное светлое пространство внутри квартир, а наличие открытых пространств обеспечивает прекрасные условия для отдыха и наслаждения видами окружающей природы и горных ландшафтов. Зеленые зоны призваны создать приятную атмосферу и благоприятный микроклимат.
- Планируемая сдача: лето 2028 года
- Этаж: 3 из 9
- Количество спален: 3
- Имеются кухня-столовая, гостиная, гардеробная, две ванные комнаты и лоджия
Цена составляет: 672 936,00 EUR

Вернуться к списку
Вывести в PDF