Четырехкомнатная квартира в Бежиград, Любляна
Параметры
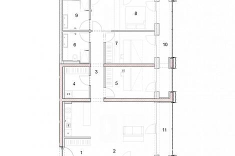
Предлагается на продажу 4-комнатная квартира в новом жилом доме района Бежиград, Любляна. Жилая площадь составляет 136,45 м², и она расположена на пятом этаже девятиэтажного здания, которое планируется сдать в эксплуатацию к 2028 году. Уникальное местоположение в жилом комплексе «Новый Бежиград», раскинувшемся между улицами Толстого и Машера-Шпашичева, подчеркивает современные архитектурные решения и обилие зеленых насаждений вокруг.
«Новый Бежиград» представляет современный проект в районе Бежиград, обещающий стать светлым, зелёным и открытым. Использование современных террасных конструкций позволяет создать зеленые пространства даже на верхних уровнях здания. Просторные стеклянные окна в квартире обеспечивают максимальный уровень естественного освещения и великолепные виды на величественные Юлийские Альпы. Прочные и долговечные материалы, задействованные в строительстве, гарантируют надежность и долговечность.
Квартира отличается светлым дизайном, воздухом наполненными помещениями и просторными комнатами, каждая из которых имеет хотя бы одно подсобное пространство — лоджии открывают виды на природу и горные панорамы. Зелень гармонично встроена в комплекс, создавая свежий воздух и поддерживая комфортную температуру круглый год.
- Площадь: 136,45 м²
- Этаж: 5/9
- Спальни: 3
- Ванные комнаты: 2
- Дополнительные помещения: Предпространство, две лоджии, две кладовые, кабинет, хозяйственное помещение
Цена: 811 827 EUR

Вернуться к списку
Вывести в PDF