Пиран: квартира с четырьмя комнатами
Параметры
Предлагается уникальная квартира с полным обновлением в историческом сердце Пирана. Эта исключительная трёхкомнатная недвижимость, сопровождаемая частной студией, открывает ваши глаза на захватывающие 360° панорамы Адриатического моря, известной Пиранской стены и церкви святого Юрия. Квартира и студия продаются исключительно в комплексе.
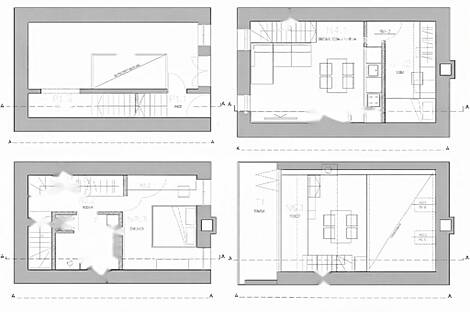
Объект общей площадью 114 м² охватывает шесть уровней: подвал, первый этаж, два верхних этажа и мансарду. Основная квартира была обновлена в 2022 году и включает 75 м² пространства с кухней, гостиной, двумя спальнями и душевой. Студия, обновлённая в 2024 году, занимает 20 м² и предлагает вариативность в планировке. В 2025 году была реконструирована фасадная часть здания.
Эти работы привнесли в собственность качество жизни и комфорт: новые межэтажные перекрытия и полы, надёжная теплоизоляция кровли, тройные мансардные окна, изящные стеклянные ограждения и личная внутренняя лестница. Все инженерные коммуникации модернизированы, включая электропроводку и водоснабжение. Недвижимость оборудована последними системами отопления и кондиционирования.
В состав объекта входят балкон, атриум и терраса площадью 13 м² с впечатляющим морским видом. Тут также предусмотрено место для хранения велосипедов и два санузла. Удобства предусмотрены для пар, семей и пожилых, допускаются домашние животные.
Рядом находятся все необходимые объекты инфраструктуры: детские сады, школы, спортивные площадки, природные зоны, автобусные остановки, удобный выезд на автомагистраль, центральная часть города и рестораны, что делает это жильё идеальным для постоянного проживания, отпуска или выгодной инвестиции.
- Общая площадь: 114 м²
- Этажи: подвал + первый этаж + два верхних этажа + мансарда
- Спальни: 3
- Санузлы: 2
- Площадь участка: 43 м²
- Отопление: электрическое с тепловым насосом
- Система кондиционирования: современная
- Дополнения: видеодомофон, сигнализация
Цена: 700,000 евро

Вернуться к списку
Вывести в PDF