Квартира 2,5 комнаты, расположенная в Тоборе.
Параметры
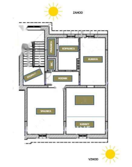
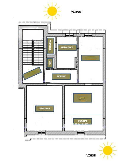
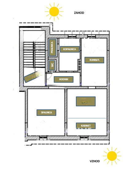
Просторный пентхаус площадью 188,9 м², идеально подходящий для комфортной жизни в самом сердце Любляны, вблизи Спортивного парка Табор, доступен для приобретения. Находясь на верхнем 3-м этаже, это жильё отличается высокими потолками и удобным тихим расположением, создавая уникальное ощущение уюта и эксклюзивности.
Мансарду составляют 2,5 комнаты на 95 м², плюс чердачное пространство в 75 м², что даёт будущим владельцам возможность адаптировать его под свои нужды: будь то создание галереи, расширение пентхауса или дополнительные жилые помещения. Окна дарят живописный вид на Люблянский замок.
Квартира была капитально отремонтирована в 2019 году. Ванная комната оснащена теплыми полами и современным душем. Также предусмотрены самостоятельный туалет и подсобные помещения. Отопление осуществляется от городской системы теплоснабжения, а также есть радиаторное и воздушное кондиционирование, что позволяет использовать их как для обогрева, так и для охлаждения. ❄️
Индивидуальный коридор и последний пролет лестницы включены в совместное владение. Вместе с квартирой предоставляются два подвала на 20 м² и возможность купить гараж во дворе.
Расположение в самом центре города предоставляет удобный доступ к детскому саду, школе, остановкам общественного транспорта, ресторанам и зонам отдыха. Тихая и зеленая окрестность особенно выделяет этот пентхаус как отличное место для проживания.
- Общая площадь: 188,9 м²
- Этаж: 3/3
- Количество комнат: 2 спальни, гостиная
- Санузлы: 1 ванная комната плюс отдельный туалет
- Энергетический класс: D (60 - 105 кВтч/м²а)
- Возможность полной или частичной меблировки
- Система отопления: радиаторы, теплые полы и климатическая система
- Связь: домофон
- Документация: нотариально заверенный договор
Цена: 485 000 EUR

Вернуться к списку
Вывести в PDF