Резиденция Друго Шалара
Параметры
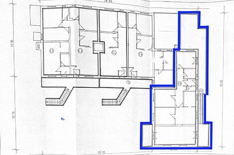
Продается часть дома в районе Шалара, Копер. Этот дом, возведенный в 1970 году, имеет общую площадь 485,5 м² из 728,8 м². Размер земельного участка составляет 1.736 м² и включает 10 отдельных жилых единиц.
На первом уровне (358,24 м²) вы найдете:
- двухкомнатную квартиру,
- четыре студии,
- комнату с личной ванной комнатой на этаже,
- общую прачечную площадью 221,91 м², обновленную в 2017 году,
- однокомнатную квартиру, также обновленную в 2017 году, и
- двухкомнатную квартиру, планируемую к обновлению в 2024 году, общей площадью 136,34 м².
На втором этаже (127,26 м²) расположены:
- двухкомнатная квартира с балконом и
- студия.
Обе эти жилые единицы имеют отдельные входы.
На участке имеется место для парковки автомобилей. Подключены все необходимые коммуникации: электричество, вода, канализация, тепловой насос и оптоволокно. Нагрев санитарной воды осуществляется с использованием жидкого топлива. В доме были произведены модернизации в 1978 (крыша), 2009 (инженерные сети), 2017, а следующая планируется на 2024 год.
- Площадь: 485,50 м²
- Энергоэффективность: D (60-105 кВтч/м²a)
Стоимость: 1.550.000 EUR

Вернуться к списку
Вывести в PDF