Дом Друго Шалара
Параметры
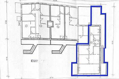
На продажу выставлена часть объекта в районе Шалара-Копер, возведенного в 1970 году, общей площадью 485,5 м² из 728,8 м², включая долю прилегающего участка площадью 1.736 м². Это редкий шанс заполучить недвижимость в живописной зоне Словении.
Первый этаж, занимающий 358,24 м², включает:
- Двухкомнатное жилье
- Четыре квартиры-студии
- Комнату с отдельной ванной в коридоре
- Общую прачечную площадью 221,91 м², реконструированную в 2017 году
- Однокомнатную квартиру с обновлением 2017 года
- Двухкомнатную квартиру, реновированную в 2024 году, площадью 136,34 м²
Второй этаж в 127,26 м² включает:
- Двухкомнатную квартиру с балконом
- Квартиру-студию
- Обе квартиры имеют отдельный доступ
На территории предусмотрены парковочные места. Все коммуникации подключены: электричество, водоснабжение, канализация, тепловой насос и оптика. Вода для санитарных нужд нагревается при помощи жидкотопливного обогревателя. Здание прошло обновление в 1978 году (крыша), 2009 году (коммуникации), с последующими реновациями в 2017 и 2024 годах.
- Общая площадь: 485,5 м²
- Энергетический класс: D (60 - 105 kWh/m²a)
Цена: 1.550.000,00 EUR

Вернуться к списку
Вывести в PDF