Квартира в Малии с двумя комнатами
Параметры
На продажу выставлена абсолютно новая двухкомнатная квартира в престижной новостройке «Малия Дримс», возведенной в 2020 году. Это жилье находится посреди очаровательной деревушки Малиа, возвышающейся над Изолой. Архитектура комплекса поражает своей современностью и идеально вписывается в окружающую природу, предоставляя потрясающий вид на Триестский и Пиранский заливы, что гарантирует высокий уровень комфорта и уюта.
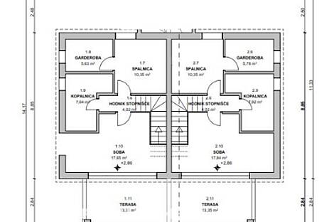
Квартира занимает общую площадь 140,5 м², из которых 52 м² приходится на жилую зону. В ее составе:
- Прихожая площадью 6,2 м²
- Ванная комната с душем площадью 6,5 м²
- Гостиная, объединенная с кухней и столовой, площадью 36,4 м²
- Спальня на галерее площадью 35 м²
- Прачечная зона площадью 2,9 м²
Балкон размером 5,3 м² расширяет жилое пространство, предлагая захватывающие виды на юго-запад, укрытые в зелени и превосходные морские горизонты, создавая уникальную атмосферу умиротворения. Выход на балкон осуществляется через широкие стеклянные двери из гостиной.
Среди преимуществ этой квартиры можно выделить:
- Подвальное помещение для хранения площадью 11 м²
- Парковочное место в гараже, а также одно место на улице
- Современная система кондиционирования для обогрева и охлаждения
- Экономичность содержания благодаря высокой энергоэффективности
- Постоянное поступление естественного света
- Чувство престижного простора и уникальности благодаря панорамному морскому виду
Квартира предлагает удобные и адаптивные планировки с собственным садом и террасой, превращая ее в идеальное место для жизни. Комплекс «Малия Дримс» совмещает в себе природу и комфорт, близость к морю и круглый год приятный климат. Строительство выполнено с использованием лучших материалов и по высоким стандартам, что способствует снижению эксплуатационных расходов. Квартира стоит 497 356,00 евро.

Вернуться к списку
Вывести в PDF