Здание в Любляне, Шишка
Параметры
Продаётся отдельностоящий дом в районе Шишка, Любляна. Построенный в 1965 году, он полностью обновлён в 2025 году. Площадь дома составляет 422 м², а участок занимает 309,1 м². Находясь вдали от главных дорог, дом предлагает умиротворение и уединение рядом с гимназией и местами для отдыха.
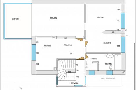
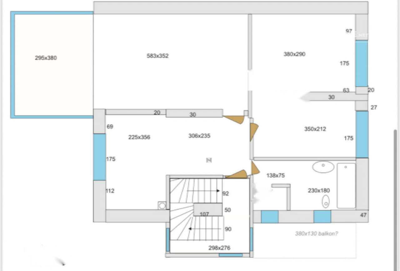
Дом имеет четыре уровня:
- Полуподвальный уровень: Рассчитан на несколько подсобных пространств и санузел. Возможна организация отдельной жилплощади.
- Первый этаж: Коридор, ванная комната, кухня с зоной для завтрака, гостиная и спальня.
- Второй этаж: Три спальни, ванная с душевой кабиной, гостиная и просторная лоджия.
- Мансарда: Три большие спальни, которые можно превратить в отдельное двухкомнатное пространство.
К достоинствам этой недвижимости относятся энергоэффективная отопительная система с тепловым насосом, окна с тройным остеклением, обновлённые в 2010 году, 70% полов с подогревом и новые входные двери. В конце 2024 года была установлена солнечная электростанция мощностью 13,5 кВт, система кондиционирования воздуха и две автоматические въездные ворота.
На территорию дома можно припарковать шесть автомобилей. Дом огражден забором и снабжен всеми необходимыми разрешениями для использования и строительства.
Дом находится в престижном районе, поблизости от фитнес-центров и спортивных клубов, таких как Жак и Гиб, а также в непосредственной близости от гимназии.
- Общая площадь: 422 м²
- Площадь участка: 309,1 м²
- Энергетический класс: C (35 - 60 кВтч/м² в год)
Цена: 960 000,00 евро

Вернуться к списку
Вывести в PDF