Квартира с более чем 5-ю комнатами на Руднике.
Параметры
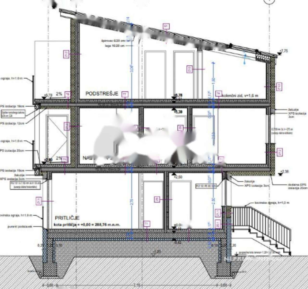
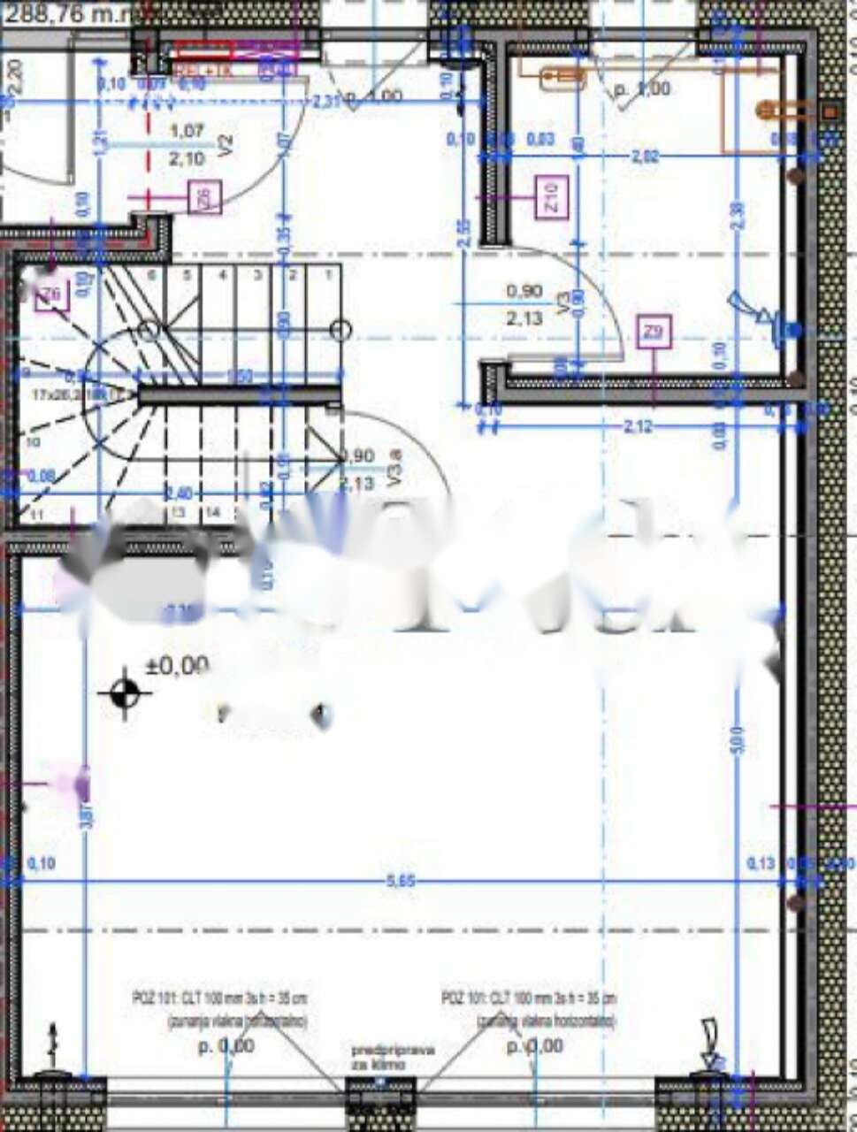
Продаётся уютная и современная пятикомнатная квартира площадью 143,07 м² в новом жилом комплексе на Руднике. Комплекс включает четыре двухквартирных дома, что делает его привлекательным для тех, кто ищет комфортное и энергосберегающее жильё вблизи от столицы, в окружении природы и городского комфорта.
Квартира располагается на первом этаже и насчитывает четыре спальни и три ванные комнаты. Кроме того, у вас будет доступ к балкону, просторной террасе и двум частным парковочным местам перед входом. Отопление осуществляется с помощью индивидуального газового котла с подогревом полов, что гарантирует уют в любое время года.
Развитая инфраструктура в округе предоставляет всё необходимое для комфортной жизни: поблизости расположены школы, детсады, супермаркет Supernova и остановка городского транспорта. До центра города можно доехать за считанные минуты на велосипеде, а объездная дорога позволяет быстро выехать за город для отдыха на свежем воздухе.️
Современное архитектурное решение и высокое качество строительства обеспечивают максимальный комфорт и приватность. Среди главных достоинств проекта:
- Великолепное расположение с панорамными видами и доступностью всей ключевой инфраструктуры;
- Энергоэффективная постройка зданий;
- Надёжная сборная конструкция и локальная система рекуперации воздуха;
- Отопление с помощью индивидуального газового котла (подогрев полов);
- Климатизированные помещения и электрические жалюзи.
Общая стоимость составляет 499 000 €. Это отличная возможность для комфортной семейной жизни в зелёном уголке города и вблизи всех городских удобств.

Вернуться к списку
Вывести в PDF