Двухквартирный дом Долги-Мост
Параметры
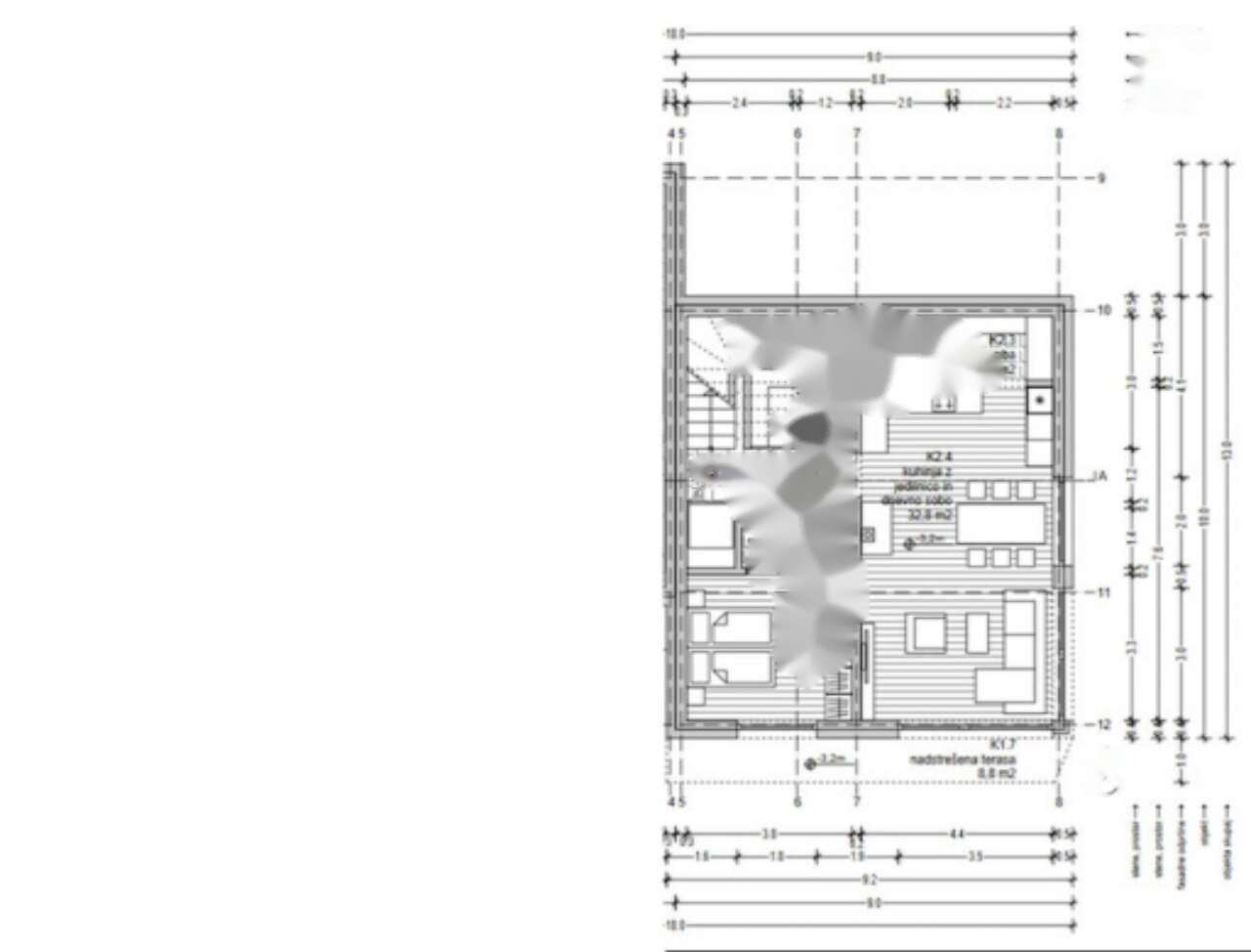
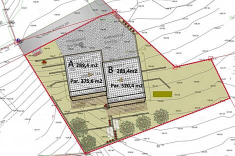
Предлагаем вашему вниманию современный двухуровневый дом, разместившийся на участке площадью 520,4 м² в живописном пригороде Любляны, в поселении Подсмрека. Этот дом окружен лесами и имеет жилую площадь 289,4 м². Новостройка с плоской крышей находится в третьей строительной стадии и открывает возможности для создания уютного и стильного интерьера, соответствующего вашим предпочтениям.
Внутри коттеджа установлен лифт, который делает передвижение между этажами максимально удобным. Просторные помещения внутри и снаружи дома обеспечивают превосходные условия для комфортного проживания, работы или семейной жизни с несколькими поколениями. Высококлассное строительство и наличие всех необходимых инженерных систем предоставляют будущим владельцам полную свободу в реализации любых идей.
Дневная зона дома ориентирована на юг, а подъезд к строению осуществляется с северной стороны. Удобное местоположение обеспечивает быстрый доступ к магазинам (1,2 км), шоссе (1 км), а также общественному транспорту (400 м до автобусной остановки и 1,4 км до остановки ЛПП 6B).
Технические характеристики недвижимости:
- Каркас: железобетонный, возведен на склоне.
- Фундамент: железобетонная плита.
- Перекрытия: выполнены из железобетона.
- Стеновые материалы: кирпич.
- Фасад: утепление 20 см с внешней штукатурной отделкой.
- Оконные и дверные конструкции: алюминиево-ПВХ с термостеклопакетами.
- Отопление и горячая вода: с помощью теплового насоса.
- Вентиляция: с функцией рекуперации.
- Коммуникации: водоснабжение, канализация, электричество, телекоммуникации (включая оптику).
- Парковка: в цокольном этаже гараж на 2 машины и парковочное место перед домом.
Цена: 540 000 €.

Вернуться к списку
Вывести в PDF