Вижмарье дом с террасой
Параметры
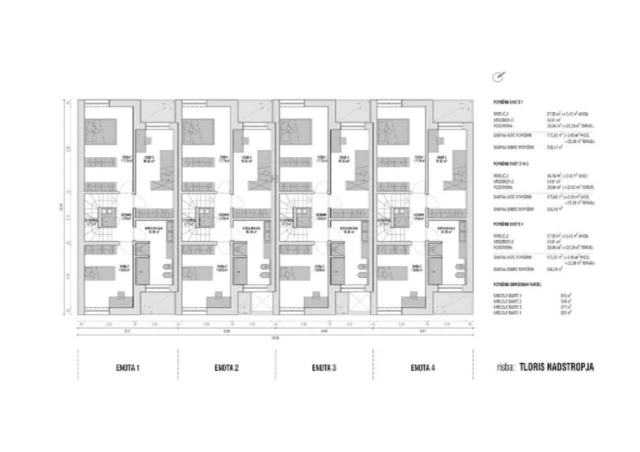
Представляем вашему вниманию стильный современный дом с террасой, расположенный в живописном районе Вижмарье. Построенное в 2025 году, это здание входит в комплекс из четырёх новых домов, которые уютно разместились на границе поселка. Дом площадью 194,3 м² возвышается на участке в 178 м² и состоит из первого этажа, второго этажа, а также мансарды.
Первый этаж общей площадью 57,89 м² включает в себя уютную гостиную, объединённую с кухней и столовой, кухонную кладовую, ванную комнату, прихожую, хозяйственное помещение и кладовую. Терраса, площадью 8,89 м², крытая и отлично подходит для отдыха на свежем воздухе.
Второй этаж, площадью 64,91 м², оборудован тремя спальнями, ванной комнатой и коридором. Мансарда предлагает спальню с гардеробной, ванную и коридор, а также просторную террасу, занимающую 23,69 м².
Во дворе перед домом обустроена парковка для двух автомобилей. Здание построено из блоков ISOSPAN с интегрированным утеплителем, оснащено трёхслойными ПВХ окнами с электроприводом жалюзи и готовностью под установку москитных сеток. Входная дверь выполнена из алюминия и может открываться с помощью отпечатка пальца.
Дом отапливается тепловым насосом, внешняя отделка выполнена на базовом уровне, между домами установлены панельные ограждения. Подведены все коммунальные и телекоммуникационные подключения. Удобная близость к инфраструктуре, включая детский сад, школу, гимназию, общественный транспорт и магазины, делает этот дом идеальным для семьи. Любители природы оценят соседство с горой Шмарна, а быстрый доступ к автостраде обеспечивает лёгкость передвижения.
- Площадь: 194,30 м²
- Этажность: первый этаж + второй этаж + мансарда
- Площадь участка: 178,00 м²
Цена: 498 000,00 евро

Вернуться к списку
Вывести в PDF