Пятикомнатная или более квартира в Брезовице рядом с Градиной
Параметры
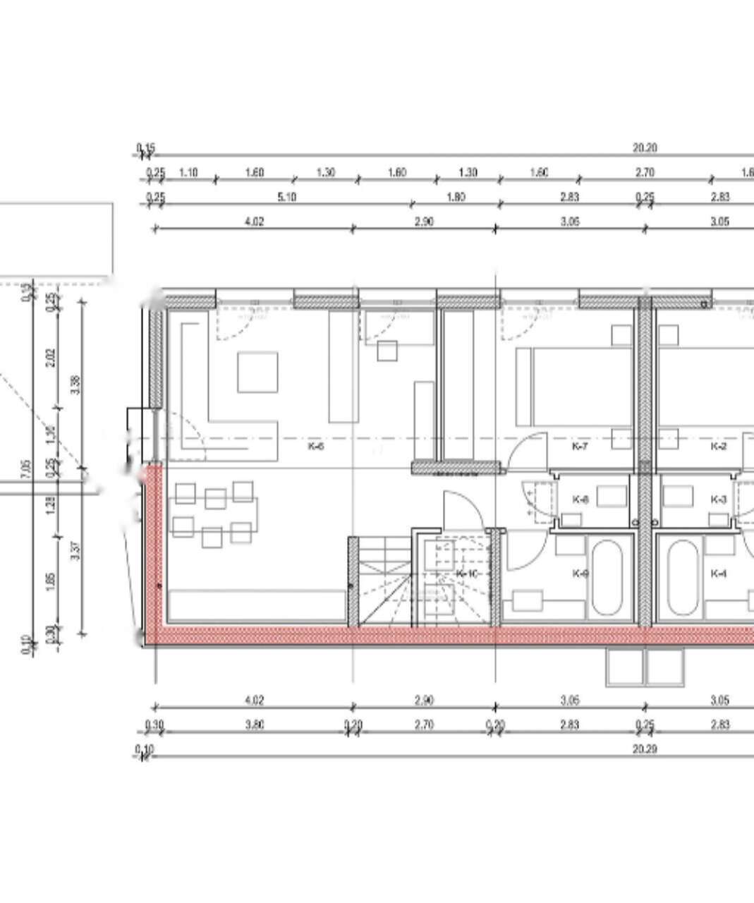
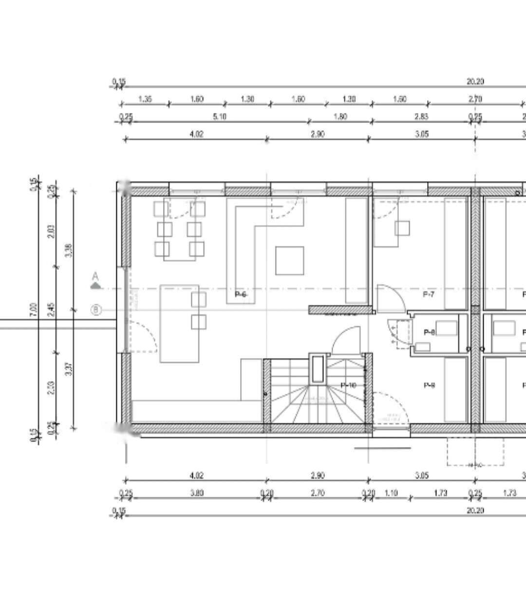
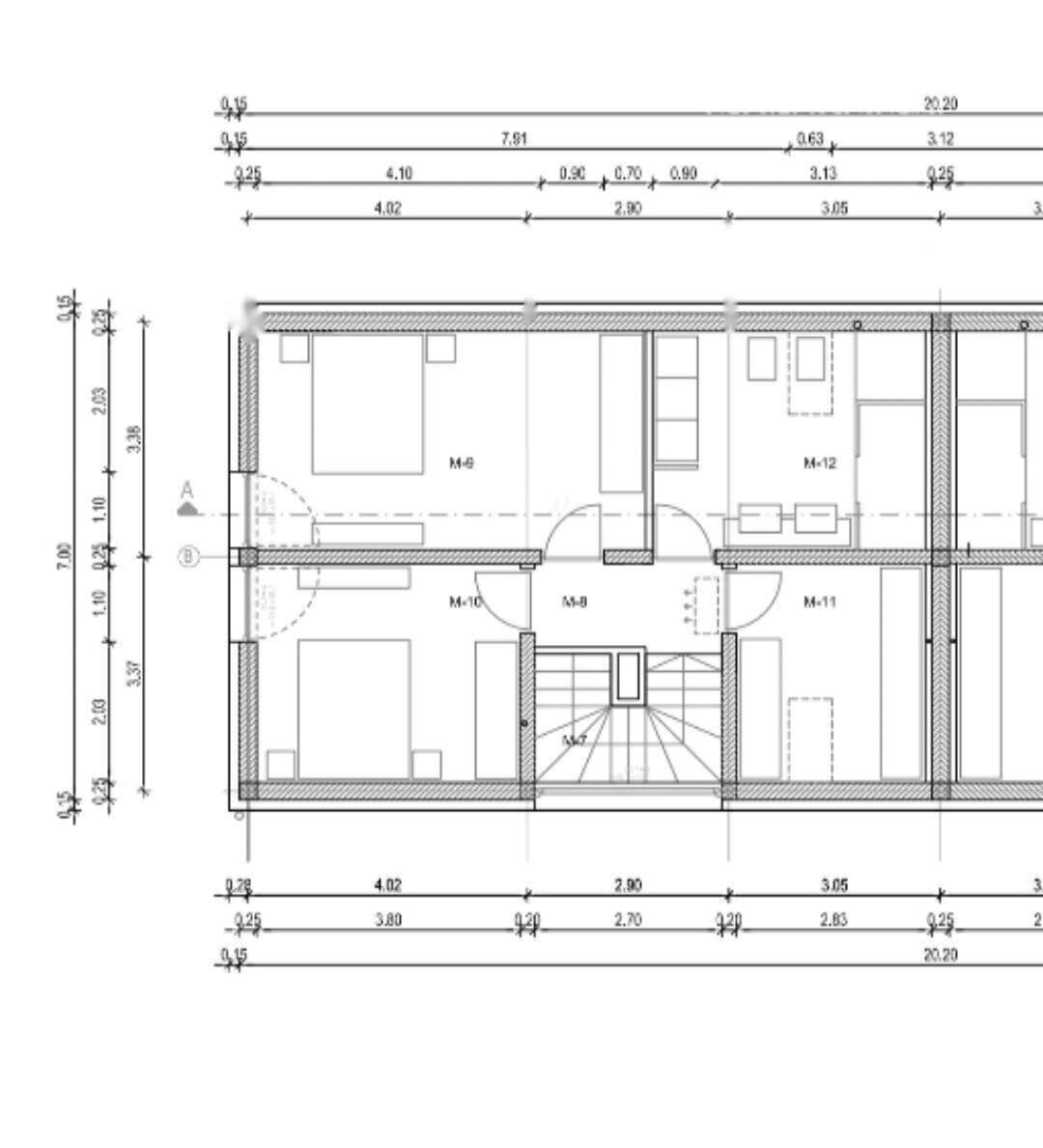
В деревне Брезовица при Градину предлагается уникальная возможность приобрести просторную многокомнатную недвижимость общей площадью 180 м². Этот объект находится на продлённой IV стадии строительства в энергоэффективном двухэтажном здании. Дом состоит из трёх уровней (первый этаж, второй этаж + мансарда), что делает его идеальным для комфортного проживания большой или многодетной семьи.
Ключевым преимуществом является возможность преобразования дома в две отдельные жилые зоны, что особенно привлекательно для многопоколенческих семей. Первый этаж может быть обустроен как самостоятельное жилье, в то время как на втором этаже и мансарде можно создать ещё одну жилую единицу. Возможность приобретения в состоянии "под ключ" позволяет владельцу адаптировать дом под личные нужды, включая установку системы саморекуперации, теплового насоса и кондиционирования.
Жилье расположено в районе с развитой инфраструктурой, и все подключения к общественным коммуникациям уже завершены. Фасад и окна завершены, а прилегающая территория находится на стадии предварительных отделочных работ.
- Площадь: 180 м²
- Этажи: первый этаж, второй этаж + мансарда
- Отопление: пол с подогревом
- Энергоэффективность: текущая оценка невозможна
- Тепловой насос и кондиционирование
- Цена: 216 000 EUR (1 200 EUR/м²) + НДС 9,5%
Планируется, что объект будет завершен и готов к заселению к концу 2025 года. Это отличное предложение для тех, кто стремится к комфортному и современному проживанию в живописной местности Словении.

Вернуться к списку
Вывести в PDF