Голац дом с террасой
Параметры
Продаем уютный дом площадью 77,9 м² с террасой, расположенный в спокойной деревне Голац и датированный 1900 годом. Земельный участок общей площадью 9.420 м² обеспечивает все условия для автономного проживания. Уже получено разрешение на возведение жилого дома площадью 122 м². Этот уголок наделён природной красотой и умиротворением, что идеально подходит для жизни в гармонии с окружающим миром. ✨
Этот дом окружен живописными лугами, пастбищами и лесами, открывающими возможность для самостоятельного образа жизни. В 200 метрах расположен природный источник воды, способствующий устойчивому существованию. Территория участка включает:
- 216 м² — под строительство нового дома
- 1.212 м² — первоклассные сельскохозяйственные угодья в 200 метрах от дома
- 780 м² — сельскохозяйственные угодья в 300 метрах от дома
- 7.212 м² — лесной массив, расположенный в 3 километрах от дома
На участке предусмотрены места для парковки двух автомобилей, что добавляет комфорта. Поблизости находятся туристические достопримечательности, такие как Добрая хата здоровья и энергетические точки, что привлекает внимание посетителей. ♀️
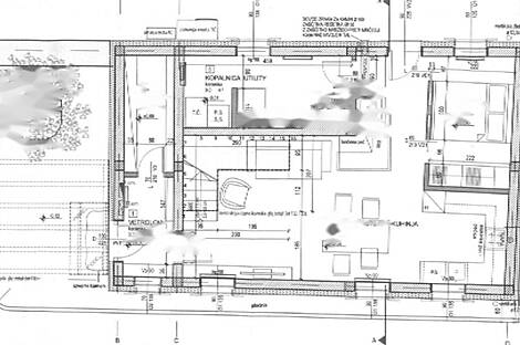
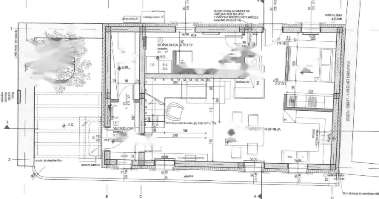
Детали проекта:
- Первый уровень:
- Входная зона: 3,7 м² (отделка керамикой)
- Кладовая: 4,4 м² (отделка керамикой)
- Гостиная и кухня: 36,1 м² (отделка керамикой)
- Спальня: 7,9 м² (отделка керамикой)
- Ванная и прачечная: 9 м² (отделка керамикой)
- Суммарная площадь этажа: 61,1 м² (нетто), 78,9 м² (брутто)
- Мансарда:
- Гостиная: 20,9 м² (паркетный пол)
- Комната 1: 12,7 м² (паркетный пол)
- Комната 2: 13 м² (паркетный пол)
- Ванная: 5,6 м² (отделка керамикой)
- Лоджия: 8,7 м² (отделка керамикой)
- Суммарная площадь этажа: 60,9 м² (нетто), 78,84 м² (брутто)
Стоимость: 54.900,00 евро

Вернуться к списку
Вывести в PDF