Трёхкомнатная квартира в Старой Любляне
Параметры
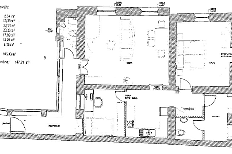
В самом сердце Старой Любляны, у центрального рынка, спряталась уникальная 100-квадратная квартира с тремя комнатами. В её основе — дом из XV века, который был полностью отремонтирован в 2019 году. Хотя здание почти полностью перестроили около двух десятилетий назад, его фасад, толщина стен которого достигает одного метра, сохранил старинное очарование и отличную изоляцию. Средний коммунальный платеж составляет примерно 100 € в месяц.
Внутреннее оформление квартиры сочетает классическую элегантность с современным удобством. Полы отделаны прочным падуком, а в СПА и семейной ванной использована высококачественная черная плитка с подогревом. Путь в квартиру начинается через роскошный коридор с красным ковром. Гостевой туалет оборудован унитазом и писсуаром, а гостиной отведено место для домашнего кинотеатра. На кухне вас ждет вместительный американский холодильник и современное кухонное оборудование.
Из кухни можно попасть в потенциальное рабочее место или детскую, а также в главную спальню с гардеробом для него и нее. Еще одно помещение служит как кладовая или винный погреб. В СПА-зоне расположена большая душевая кабина, инфракрасная сауна и аутентичная ванна. Семейная ванная комната включает большой умывальник и стиральную машину с функцией сушки.
Атриум дома служит местом для хранения велосипедов. Автомобиль может подъехать к пешеходной зоне до 10 утра при наличии специального разрешения, а также есть возможность аренды парковочного места в гараже на Конгрессной площади за дополнительную плату.
- Площадь: 100,00 м²
- Этаж: первый из трех
- Спальни: 2
- Ванные комнаты: 2
- Отдельный санузел
- Кладовка
- Атриум
- Противовзломная дверь
- Видеодомофон
- Охранная сигнализация
- Оптоволоконный интернет
- Система вентиляции
- Частично меблировано
- Дистанционное управление отоплением
- Электрическое отопление с радиаторами и теплым полом
- Разрешено проживание с животными
- Вблизи детского сада и школы
- Рядом с зонами отдыха и природой
- Удобная близость к автобусной остановке и транспортной развязке
- Недалеко от центра и ресторанов
- Идеально для пар и семей
Цена: 750 000 EUR

Вернуться к списку
Вывести в PDF