Тацен: дом с террасой
Параметры
Представляем вашему вниманию современный дом с террасой площадью 288,3 м², расположенный в живописной и спокойной местности у подножия Шмарной Горы. Начать строительство планируется в первом квартале 2025 года. Проект дома соответствует всем современным стандартам архитектуры, что обеспечивает комфорт и высокое качество жизни новым жильцам.
Преимущество данного места — это удобный доступ как к центру города, так и к автомагистрали. Вокруг есть зоны для отдыха и школа, что делает дом привлекательным для семейного проживания. Солнечное расположение дома и окружающая природа создают атмосферу спокойствия и уединения.
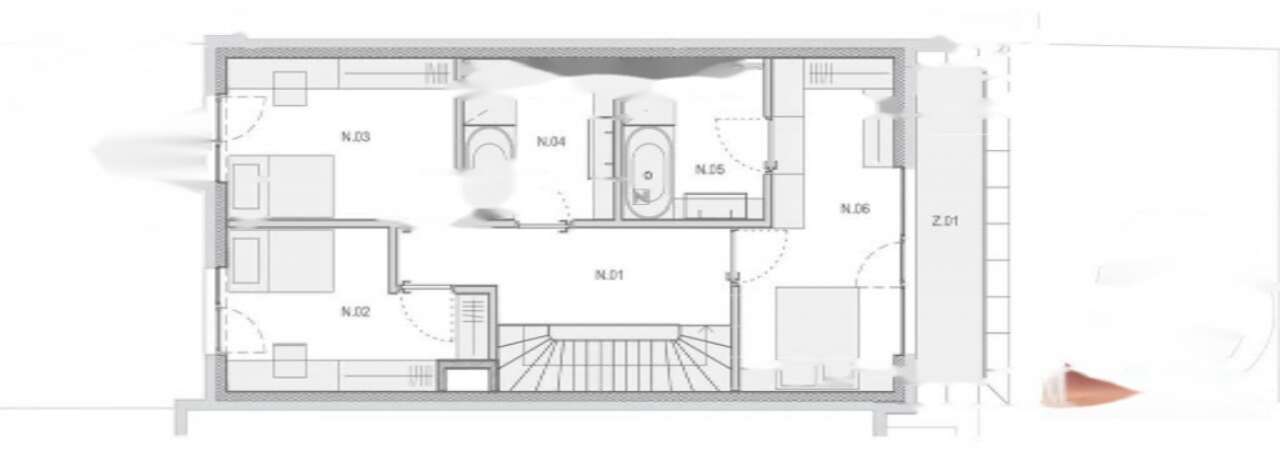
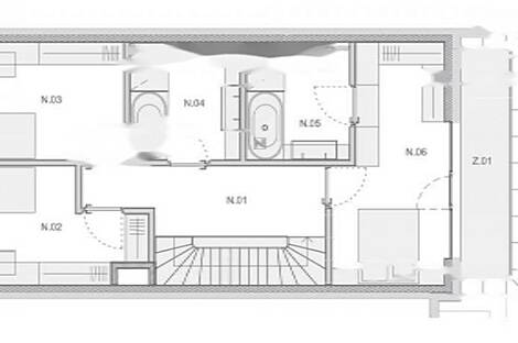
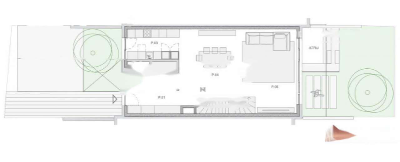
Жилая площадь распределяется между подвалом, первым и вторым этажами. Подвал отведен под хозяйственные помещения, кладовую, многофункциональную зону и машинное отделение. На первом этаже расположены просторная кухня, светлая гостиная с обеденной зоной и гостевой санузел. Второй этаж включает в себя главную спальню с гардеробной и личной ванной комнатой, две дополнительные спальни и еще одну ванную комнату.
️ Дом входит в состав закрытого комплекса, где все здания оформлены в современном стиле с использованием качественных натуральных материалов. Облицованный кирпичом и классической штукатуркой фасад придаёт стройению элегантность и прочность. Деревянные трёхслойные окна обеспечивают отличную тепло- и звукоизоляцию.
Завершение строительства предполагает готовые внешние и основные внутренние элементы, предоставляя будущим владельцам возможность выбрать собственный стиль отделки. Полная отделка "под ключ" может быть завершена в течение трёх месяцев после подписания договора. Широкая терраса и компактный атриум позволяют наслаждаться природой, не покидая дома.
- Общая площадь: 288,3 м²
- Жилая площадь: 224,85 м²
- Этажи: Подвал + Первый этаж + Второй этаж
- Количество спален: 3
- Количество ванных комнат: 2
- Площадь террасы: 29 м²
- Площадь парковки: 25 м²
- Площадь атриума: 9 м²
- Ориентация: Восток – Запад
Цена: 650,000 EUR

Вернуться к списку
Вывести в PDF