Любляна Вич — дом с террасой
Параметры
В районе Вич в Любляне выставлен на продажу стильный и комфортный дом с террасой, который выделяется своей потрясающей архитектурой и высокоэффективной энергосистемой. Прекрасная локация обеспечивает удобный доступ ко всей ключевой инфраструктуре и центральным местам города, которые находятся всего в 2,5 км. Это новое строение сочетает в себе современный дизайн и практичное планирование, делая его идеальным выбором для больших семей и тех, кто ценит уют и безопасность.
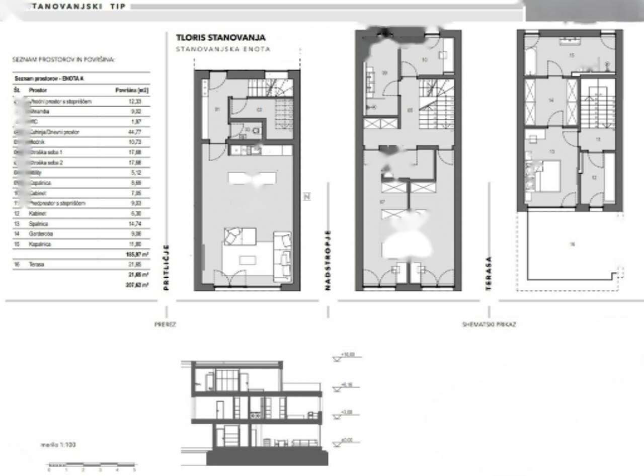
Дом окружает ухоженная озеленённая территория, создающая прекрасные условия для отдыха на свежем воздухе. Внутри все выполнено с акцентом на максимальный комфорт. Общая жилая площадь равна 207,62 м² и включает отдельную крышу террасы в 21,65 м². На первом этаже расположен просторный открытый план — холл, кладовая, отдельный санузел и гостиная с кухней, из которой можно выйти в уютный атриум. На втором этаже расположены две детские, кабинет, хозяйственное помещение и ванная. Третий этаж включает спальню с гардеробной и ванной, дополнительный кабинет и просторную террасу для отдыха.
К преимуществам недвижимости относятся современное напольное отопление на природном газе, централизованная система вентиляции, высококачественное остекление с тройными стеклопакетами и автоматическими шторами. Доступ к дому обеспечивается по удобной асфальтированной дороге, перед домом находится два парковочных места, огороженных барьером.
Дом находится в завершающей стадии строительства, что даёт будущему владельцу возможность внести личные изменения в отделку. Несмотря на живую городскую среду, дом предлагает комфортный и защищённый двор, где можно наслаждаться уединением в самом центре городской жизни. Поблизости расположены школы, детские сады, магазины и транспортные узлы, что создает идеальные условия для комфортной жизни всей семьи.
- Общая площадь: 207,62 м²
- Этажность: первый этаж + второй этаж + два верхних этажа
- Площадь участка: 227,41 м²
- Жилая площадь: 185,97 м²
- Крыша террасы: 21,65 м²
- Отопление: половое на природном газе
- Вентиляция: центральная система
- Подключения: все коммуникации присутствуют
- Парковка: 2 места перед домом
- Экстерьер: асфальтированный и благоустроенный доступ, огороженный двор
Цена: 729 000,00 €

Вернуться к списку
Вывести в PDF