Место: Рожна Долина, дом
Параметры
В районе Рожна Долина в Любляне предлагается уникальный объект для инвестиций — жилой и коммерческий комплекс, построенный в 1980 году и частично обновленный в 2004 году. Здание расположено на участке площадью 625 м², который открывает широкие перспективы для дальнейшего развития.
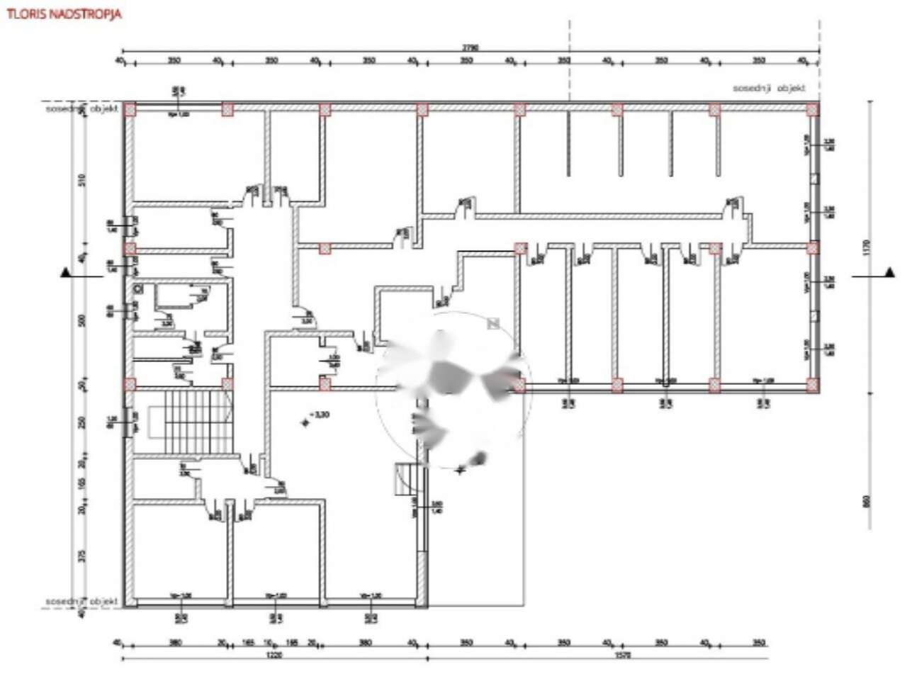
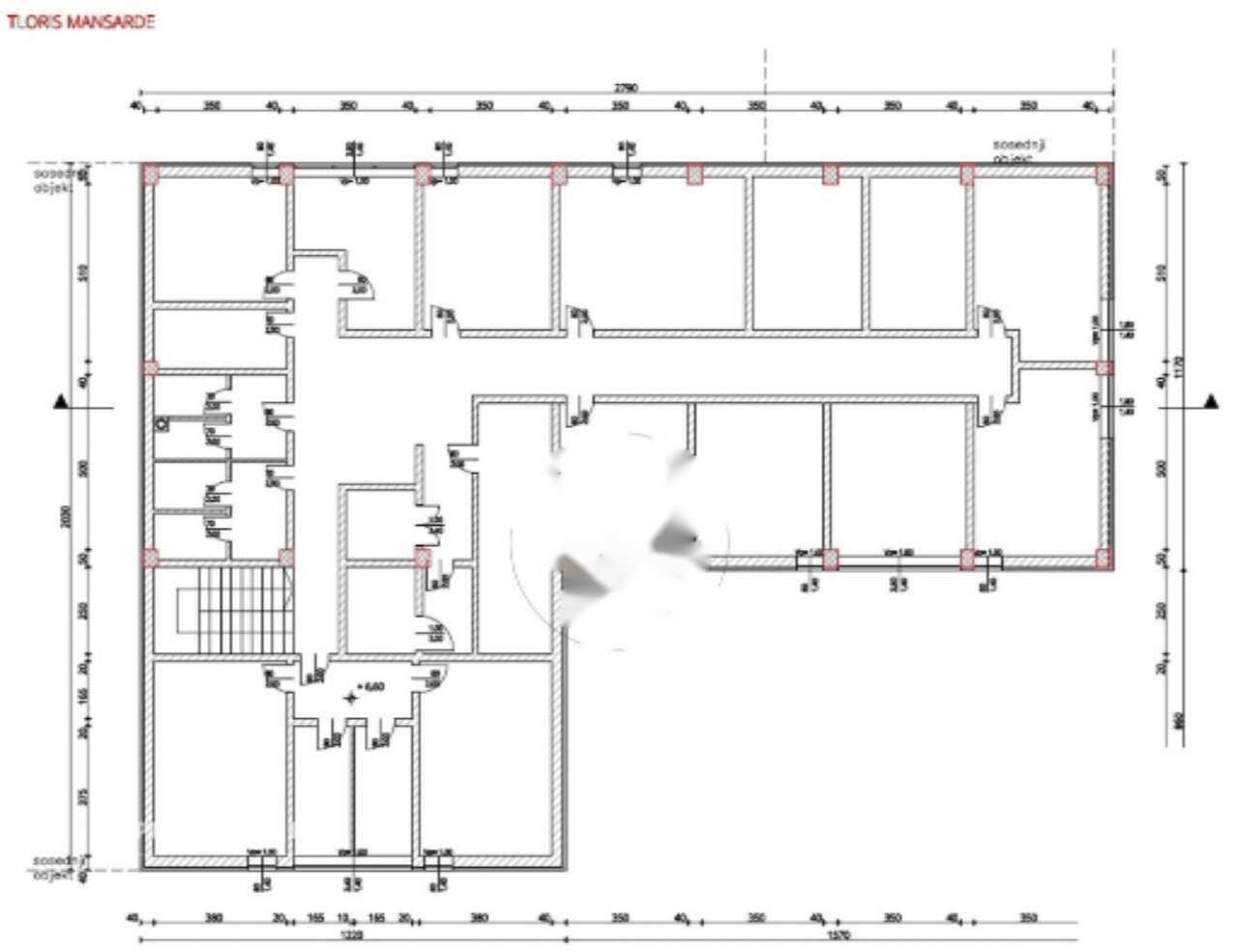
Когда-то на первом этаже здания действовала типография с различными сервисными зонами: котельной, складом, приёмной и гаражом. На втором этаже и в мансарде был обустроен хостел, включающий пять различных жилых единиц. Сейчас внутренние помещения нуждаются в значительных реставрационных работах.
Комплекс охватывает общую площадь в 1 147 м² и включает в себя как жилые, так и коммерческие помещения. Здание, возведенное из кирпича, сохраняет оригинальную крышу и фасад. Система отопления — центральная, с газовым обогревом через радиаторы.
Здание находится всего в нескольких минутах езды от центра города, что предоставляет быстрый доступ ко всем необходимым объектам инфраструктуры: магазинам, образовательным учреждениям, детским садам, а также паркам Тиволи и Рожник. Подъезд к объекту осуществлен по городской дороге, а также предусмотрены телефонные, телевизионные и интернет подключения.
- Площадь: 1 147 м²
- Этажность: первый этаж + второй этаж + мансарда
- Участок: 625 м²
- Центральное отопление с радиаторами
- Энергоэффективность: класс D (60 - 105 кВтч/м²/год)
Общая цена: 1 500 000 EUR

Вернуться к списку
Вывести в PDF